您好!欢迎来到
设计帮帮网
!
注册
登录
账号登录
QQ登录
支付宝登录
微信登录
短信登录
ID:
余额:
0.00
元
积分:
0
积分
充值
签到
已签到
提现
安全
认证
收藏
退出登录
网站首页
手机版
网站公告
帮助中心
工单管理
管理中心
财务管理
在线充值
快速提现
提现历史
财务明细
积分明细
我是买家
购物车
发布需求
需求管理
买入订单
建立自助交易
我是卖家
发布出售
商品管理
售出订单
建立自助交易
店铺管理
商家保证金
帮助咨询
帮助中心
投诉建议
联系客服
关于我们
用户管理
基本资料
认证中心
我的收藏
用户等级
账户安全
修改密码
登录记录
安全退出
https://web.sjbb168.com/
商品
商品
店铺
资讯
热门搜索:
自定义的
免费发布需求
免费发布任务
建立自助交易
免费发布商品
11
全部商品分类
2D/3D/图纸
分组:
机械设备
交通运输
换热器
泵
生产线/流水线
减速机/减速器
车库
电动机/发电机/柴油机
布局图/布置图
机器人/机械手
罐/发酵罐/反应罐/搅拌罐/储罐/油罐
反应釜/反应器/精馏塔/换热器/冷却器/冷凝器
其它
机械设计资料
分组:
毕业设计/课程设计
图纸
文档
其它
模具设计资料
分组:
模具毕业设计/课程设计
说明书/论文
图档
其它
车辆设计资料
分组:
毕业设计/课程设计
图纸
文档
其它
采矿工程资料
分组:
毕业设计/课程设计
图纸/文档
其它
食品/化工/制药
分组:
毕业设计/课程设计
说明书/论文/图纸
其它
土木/建筑/资料
分组:
毕业设计/课程设计
图纸/文档/资料
其它
电气/PLC/单片机
分组:
毕业设计/课程设计
说明书/论文
图纸/CAD
其它
给排水/污水处理
分组:
毕业设计/课程设计
图纸/文档
水利/暖通/供换热
分组:
毕业设计/课程设计
CAD图纸
文档资料
其它
技术资料/其它
分组:
工具/软件/动画
参考资料
文档资料
勘察报告
其它
首页
机械
车辆
模具
土木
PLC
减速器
机器人
机械手
空调系统
采矿
化工
手机版
当前位置:
首页
>
资讯
>
机械设计资料
变换炉设备图 CAD
分类:
机械设计资料
时间:2026-01-21 03:56
浏览:2
内容
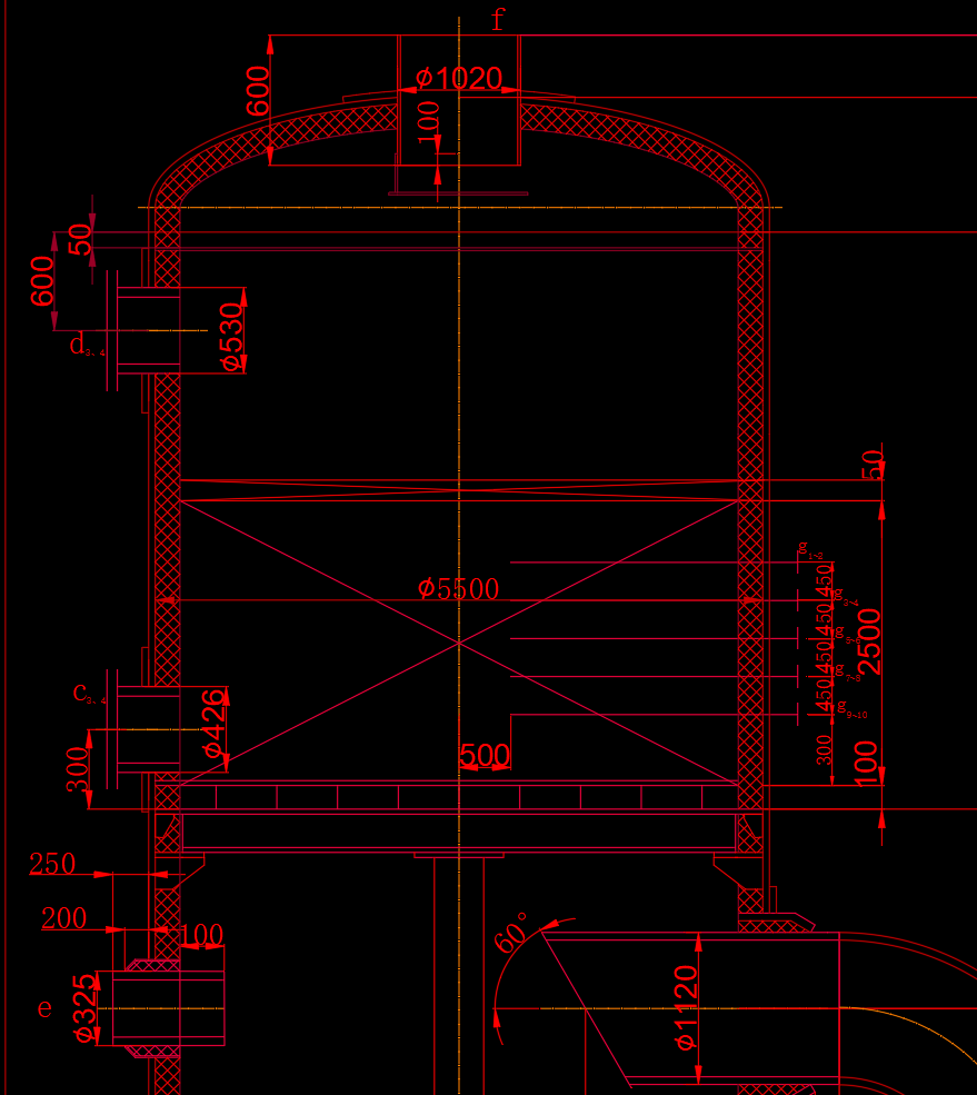
您看到的这张变换炉设备CAD图,是配套学习资料包中的一个示例。它清晰展示了设备的核心结构,比如催化剂床层与换热单元的布置方式,这有助于理解其实现化学反应与热量回收的关键作用。通过这类实用资料,可以在设计阶段就对设备布局和管道接口有更直观的把握,从而显著缩短工程准备时间。此处图片仅为资料包内的内容截图,旨在让您在使用前能对其有一个全面的初步了解。需要留意的是,资料包中的专业文件需在对应的CAD软件环境中才能进行完整查看、编辑或开展后续工作。
评论
[
展开所有评论
]
上一篇
机械手-气动机械手升降臂结构设计,面板操纵式(有动力)点位示教部分控制软件设计
下一篇
机械手-机械手设计(论文+CAD图纸+开题报告+任务书+接线图+液压系统图+外文翻译……)
全部
2D/3D/图纸
机械设计资料
收录软文
最近更新
1
机械手-液压机械手(说明书+CAD图纸+SolidWorks三维图+开题报告+任务书+文献)
2
中温变换炉全套制作图 CAD
3
机械手-液压机械手(论文+CAD图纸+开题报告+文件综述+答辩PPT)
4
机械手-浇注机械手(说明书+CAD图纸)
5
中温变换炉设备图
6
机械手-气动机械手设计
7
机械手-气动机械手升降臂结构设计,面板操纵式(有动力)点位示教部分控制软件设计
8
变换炉设备图 CAD
9
机械手-机械手设计(论文+CAD图纸+开题报告+任务书+接线图+液压系统图+外文翻译……)
10
机械手-机械手控制装置论文和说明书
买家指南
如何注册
如何购买
搜索商品
支付方式
卖家指南
如何出售
收费标准
入驻签约
安全交易
钓鱼防骗
预防盗号
谨防诈骗
实名认证
常见问题
如何充值
如何提现
真假客服
忘记密码
服务中心
我要咨询
我要建议
我要投诉
QQ客服
网站首页
|
关于我们
|
广告合作
|
联系我们
|
隐私条款
|
免责声明
|
网站地图
CopyRight 2014-2024 设计帮帮网 |
闽ICP备2024057214号
咨询热线
优先咨询网站“在线客服”,若不在线请在电脑端“工单管理””发起工单”