机械设计资料
返回首页
会员中心
功能菜单
联系我们
https://web.sjbb168.com/
湛江市XX教师公寓CAD图纸
来源: 阅读:47
网站管理员
发布于 2026-01-26 09:50
查看主页
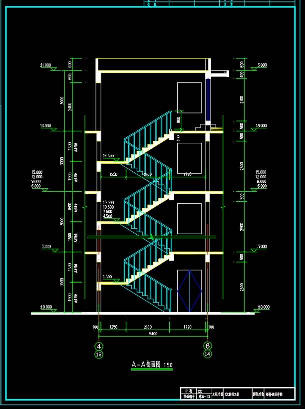
湛江市XX教师公寓的CAD图纸,是项目从方案到施工的关键技术载体。它精确表达了建筑各专业的设计信息,包括平面布局、立面造型、结构构件及管线综合。这套图纸确保了施工方对设计意图的准确理解,是进行工程量核算、现场放线和各工种协同作业的直接依据。其严谨性与完整性直接关系到工程的质量、成本与进度控制,为项目的顺利实施奠定了坚实的技术基础,是一份极具价值的实用资料。
免责声明:本文为用户发表,不代表网站立场,仅供参考,不构成引导等用途。
机械设计资料
相关推荐
课程设计——带PLC(艾默生EC10A-1614BTA)和变频器(EV1000-4T0055G+艾默生变频器)的带式运输机传动系统设计【说明书+任务书+CAD图纸(传动装配图+梯形图+电气原理图+PLC接线图+轴)】
02/15
55
变电站事故油池
02/14
52
(3吨)单钩移动电动葫芦(论文+CAD图纸)
01/27
55
年产6万吨酸奶工厂车间本科毕业设计(论文)【论文+开题报告+任务书+外文文献+中文翻译】
02/08
58
拨叉零件的加工工艺,设计钻Φ12H7和Φ25H7孔的钻床夹具课程设计(说明书 CAD图纸 工序卡 过程卡)
01/30
55
首页
分类
购物车
消息
我的
想要更低价购买?
长按二维码,联系客服享优惠折扣
微信号:
yj99cn