收录软文
返回首页
会员中心
功能菜单
联系我们
https://web.sjbb168.com/
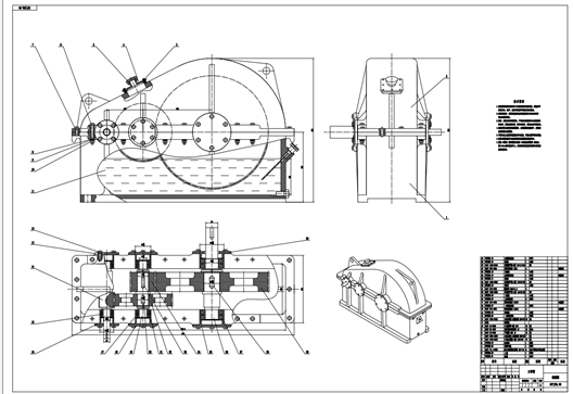
2级圆柱齿轮减速器
来源: 阅读:46
网站管理员
发布于 2026-01-25 22:00
查看主页
2级圆柱齿轮减速器在机械传动里挺常用,核心作用就是通过两级圆柱齿轮的啮合来干活。它能把输入的高速低扭矩转成输出的低速高扭矩,让设备在需要大力量的时候稳定运行。相关的学习资料里有详细的结构原理,能帮着理解怎么通过齿轮搭配实现传动比调整,满足不同设备的转速和扭矩需求。
免责声明:本文为用户发表,不代表网站立场,仅供参考,不构成引导等用途。
收录软文
相关推荐
工业机器人手臂(solidworks+proe+x_t)
01/26
57
机械制造技术基础课程设计_ca10b前刹车调整臂外壳加工工艺及φ13.8φ13和φ16沉孔夹具设计【说明书+5张CAD图纸+工序卡1张+过程卡1份】
02/03
49
电动螺旋起重机设计(说明书+CAD装配图及零件图+电路图+开题报告+翻译……)
03/28
28
变电站消弧线圈系统图
02/14
41
WY200型挖掘机液压系统设计
02/26
37
首页
分类
购物车
消息
我的
想要更低价购买?
长按二维码,联系客服享优惠折扣
微信号:
yj99cn