收录软文
返回首页
会员中心
功能菜单
联系我们
https://web.sjbb168.com/
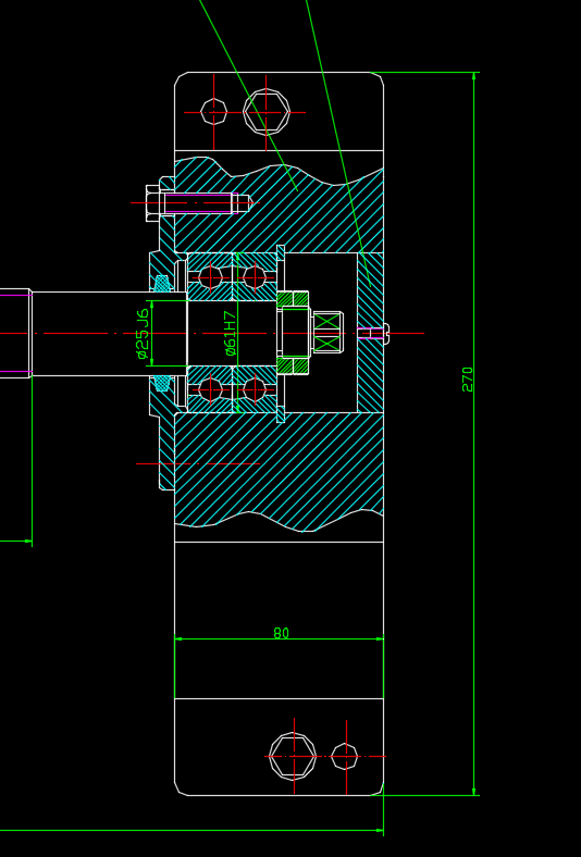
数控车床Z向进给图(CAD装配图)
来源: 阅读:58
网站管理员
发布于 2026-01-23 18:00
查看主页
数控车床Z向进给图(CAD装配图)是展示纵向进给系统部件装配关系的基础图。图中清晰呈现导轨副、丝杠螺母、驱动电机等关键部件的装配方式,标注了各零件的配合精度与位置关系。它能帮着理解进给传动结构,直观检查部件干涉问题,作为实用资料,对学习或实际调试很有帮助,能显著缩短掌握系统原理的时间。
免责声明:本文为用户发表,不代表网站立场,仅供参考,不构成引导等用途。
收录软文
相关推荐
组合钻床动力滑台液压系统设计及PLC控制设计【设计说明书(论文)+CAD图纸+外文翻译】
02/16
44
大学生设计的研磨机【设计说明书+CAD图纸+外文翻译】 备注:此份资料不包含三维模型
02/07
51
ca6140车床主轴箱变速器三维设计及仿真(说明书+CAD图纸+Solidworks三维+开题报告+任务书+外文翻译)
02/02
53
手扶式落叶收集机设计(论文+CAD图纸+proe三维)
04/04
42
机械手-浇注机械手(说明书+CAD图纸)
03/29
18
首页
分类
购物车
消息
我的
想要更低价购买?
长按二维码,联系客服享优惠折扣
微信号:
yj99cn