机械设计资料
返回首页
会员中心
功能菜单
联系我们
https://web.sjbb168.com/
150T液压机设计【计算说明书+CAD图纸】
来源: 阅读:4
网站管理员
发布于 2026-02-06 23:50
查看主页
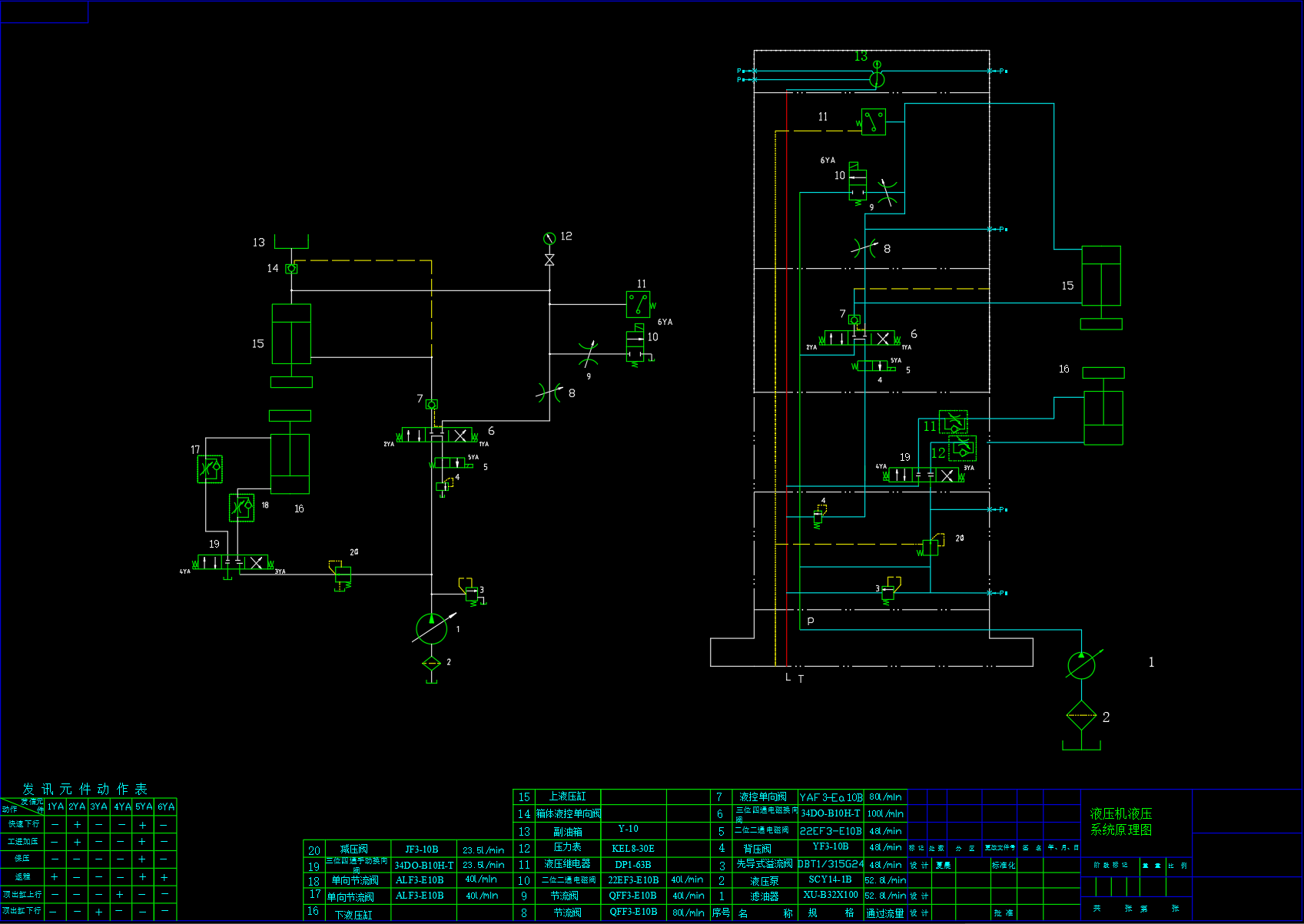
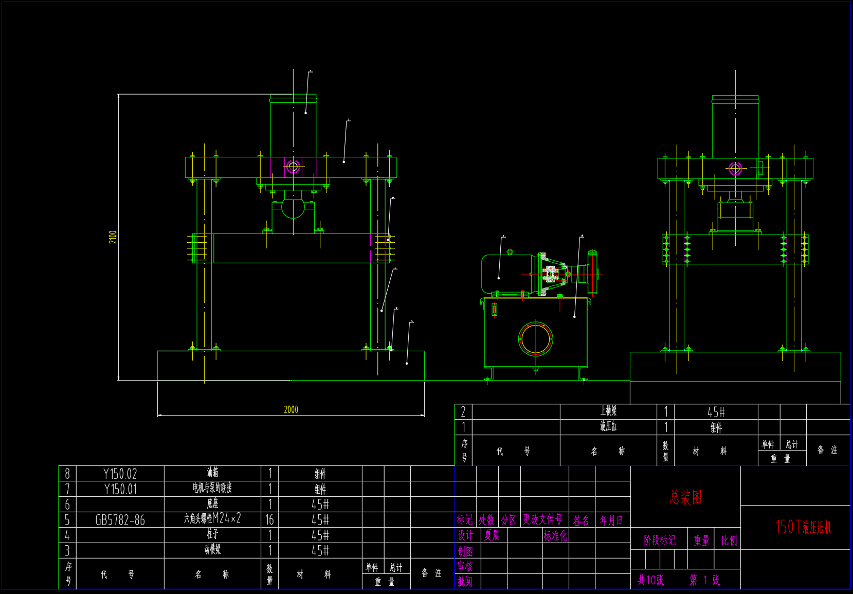
150T液压机设计包含计算与图纸,其核心在于通过严谨计算确保结构强度与稳定性。计算过程涵盖关键部件的受力分析与选型校核,为整套图纸提供理论依据。图纸则直观呈现布局、装配关系及加工要求,二者紧密结合,使设计兼具可靠性与可行性。这套学习资料能帮助理解如何将理论计算转化为实用的设计成果,对掌握液压机设计流程很有参考价值。
免责声明:本文为用户发表,不代表网站立场,仅供参考,不构成引导等用途。
机械设计资料
相关推荐
四自由度圆柱坐标机器人设计说明书+cad图+外文翻译 备注:此份不含图框与标注
01/29
17
矿用带式输送机减速器全套3D模型三维图纸(SolidWorks+step)
01/13
28
六旋翼无人机毕业设计(论文+CAD图纸+开题报告+任务书+外文翻译)
01/07
27
某社区服务综合楼布线图CAD
01/23
18
自动送料机构设计论文(26页)
02/08
5
首页
分类
购物车
消息
我的
想要更低价购买?
长按二维码,联系客服享优惠折扣
微信号:
yj99cn