机械设计资料
返回首页
会员中心
功能菜单
联系我们
https://web.sjbb168.com/
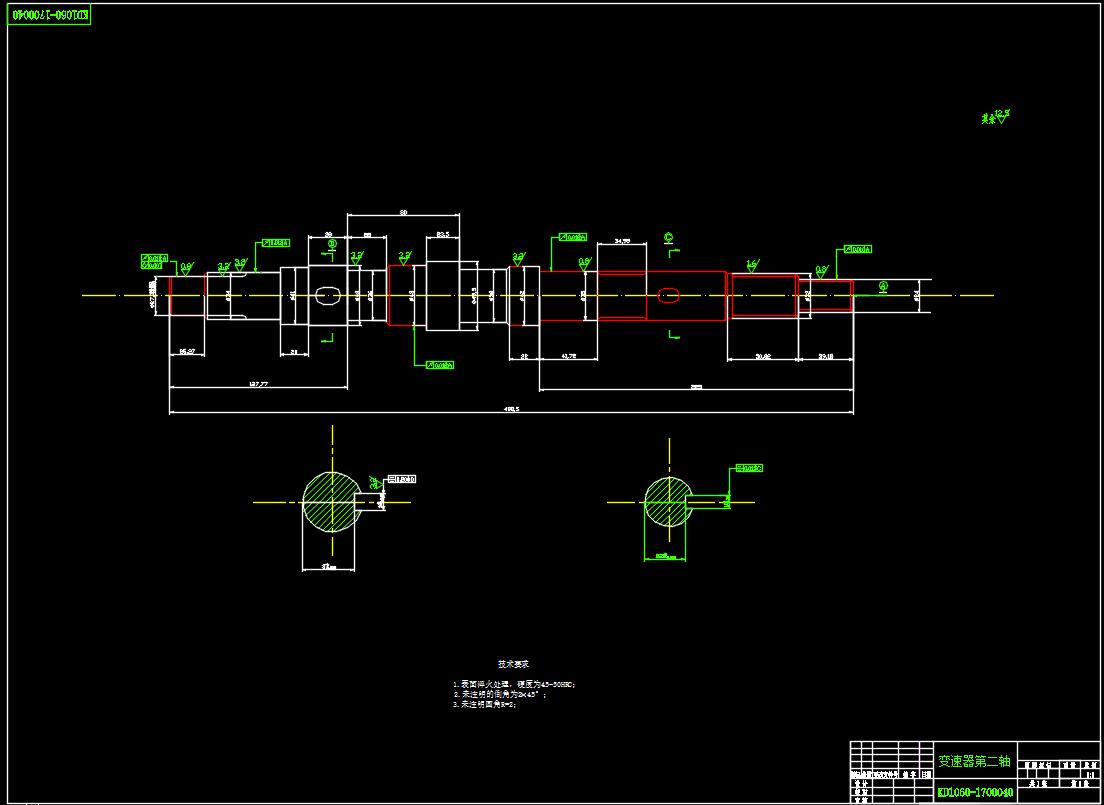
3吨柴油动力货车设计(变速器及操纵机构设计)【说明书+CAD图纸+开题报告】
来源: 阅读:27
网站管理员
发布于 2026-02-05 13:40
查看主页
对于3吨柴油动力货车而言,变速器及操纵机构的设计直接决定了整车的动力性与可靠性。一套匹配良好的变速器能高效传递柴油机扭矩,确保车辆在不同负载与路况下都有充沛动力。其操纵机构则需兼顾清晰档位与轻便手感,减少驾驶疲劳。这项设计的核心在于通过严谨计算与合理布局,实现传动平稳、换挡顺畅,从而提升车辆整体性能与耐用度。相关的学习资料深入探讨了结构选型、关键部件校核与系统集成方案,为深入理解这一关键系统提供了实用参考。
免责声明:本文为用户发表,不代表网站立场,仅供参考,不构成引导等用途。
机械设计资料
相关推荐
扎啤桶环缝环缝胎卡具的设计【说明书+动画仿真+三维sw+CAD图纸】 不锈钢啤酒桶的环缝焊接转胎式工装
02/11
35
轧机详细结构图
01/24
51
方刀架的加工工艺及钻8-M12螺纹底孔夹具设计【5张优秀】CAD总图
02/02
37
某五层骨科医院办公楼设计【说明书 建筑图 结构图 开题报告 中期报告 答辩ppt 中英文翻译】
02/06
33
液压反铲装置设计(说明书+cad+pro+开题报告)
01/01
47
首页
分类
购物车
消息
我的
想要更低价购买?
长按二维码,联系客服享优惠折扣
微信号:
yj99cn