机械设计资料
返回首页
会员中心
功能菜单
联系我们
https://web.sjbb168.com/
中单链型刮板输送机设计(毕业设计论文+12张CAD图纸)
来源: 阅读:65
网站管理员
发布于 2026-02-02 09:00
查看主页
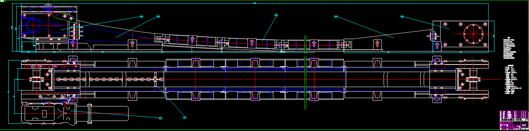
中单链型刮板输送机的设计,关键在于实现物料在封闭槽体内的可靠推移。其核心在于中部槽、刮板链及驱动装置的协同。链轮带动闭合链条,使刮板在中部槽内循环运动,从而输送散料。设计需重点考量链条的选型与强度计算、中部槽的结构与耐磨性、以及驱动装置的功率匹配。合理的张紧装置与卸载结构对稳定运行至关重要。整套学习资料涵盖了从总体方案到部件细节的完整表达,有助于深入理解此类连续输送设备的设计精髓。
免责声明:本文为用户发表,不代表网站立场,仅供参考,不构成引导等用途。
机械设计资料
相关推荐
线材510粗轧机设计(毕设含全套CAD图纸)
04/02
29
【6层】砖混住宅楼设计全套(建筑图、结构施工图纸、计算书)
01/27
47
超高层建筑配电房电气施工图纸 CAD图纸
02/13
54
新拌混凝土的性能(说明书+CAD图纸+三维图)
12/31
56
汽车变速箱加工工艺及夹具设计(毕业设计)论文+CAD图纸+工艺卡+文献翻译……
04/02
31
首页
分类
购物车
消息
我的
想要更低价购买?
长按二维码,联系客服享优惠折扣
微信号:
yj99cn