您好!欢迎来到
设计帮帮网
!
注册
登录
账号登录
QQ登录
支付宝登录
微信登录
短信登录
ID:
余额:
0.00
元
积分:
0
积分
充值
签到
已签到
提现
安全
认证
收藏
退出登录
网站首页
手机版
网站公告
帮助中心
工单管理
管理中心
财务管理
在线充值
快速提现
提现历史
财务明细
积分明细
我是买家
购物车
发布需求
需求管理
买入订单
建立自助交易
我是卖家
发布出售
商品管理
售出订单
建立自助交易
店铺管理
商家保证金
帮助咨询
帮助中心
投诉建议
联系客服
关于我们
用户管理
基本资料
认证中心
我的收藏
用户等级
账户安全
修改密码
登录记录
安全退出
https://web.sjbb168.com/
商品
商品
店铺
资讯
热门搜索:
自定义的
免费发布需求
免费发布任务
建立自助交易
免费发布商品
11
全部商品分类
2D/3D/图纸
分组:
机械设备
交通运输
换热器
泵
生产线/流水线
减速机/减速器
车库
电动机/发电机/柴油机
布局图/布置图
机器人/机械手
精馏塔/发酵罐/锅炉
反应釜/反应器/反应罐
其它
机械设计资料
分组:
毕业设计/课程设计
图纸
文档
其它
模具设计资料
分组:
模具毕业设计/课程设计
说明书/论文
图档
其它
车辆设计资料
分组:
毕业设计/课程设计
图纸
文档
其它
采矿工程资料
分组:
毕业设计/课程设计
图纸/文档
其它
食品/化工/制药
分组:
毕业设计/课程设计
说明书/论文/图纸
其它
土木/建筑/资料
分组:
毕业设计/课程设计
图纸/文档/资料
其它
电气/PLC/单片机
分组:
毕业设计/课程设计
说明书/论文
图纸/CAD
其它
给排水/污水处理
分组:
毕业设计/课程设计
图纸/文档
水利/暖通/供换热
分组:
毕业设计/课程设计
CAD图纸
文档资料
其它
技术资料/其它
分组:
工具/软件/动画
参考资料
文档资料
勘察报告
其它
首页
机械
车辆
模具
土木
PLC
减速器
机器人
机械手
空调系统
采矿
化工
手机版
当前位置:
首页
>
资讯
>
机械设计资料
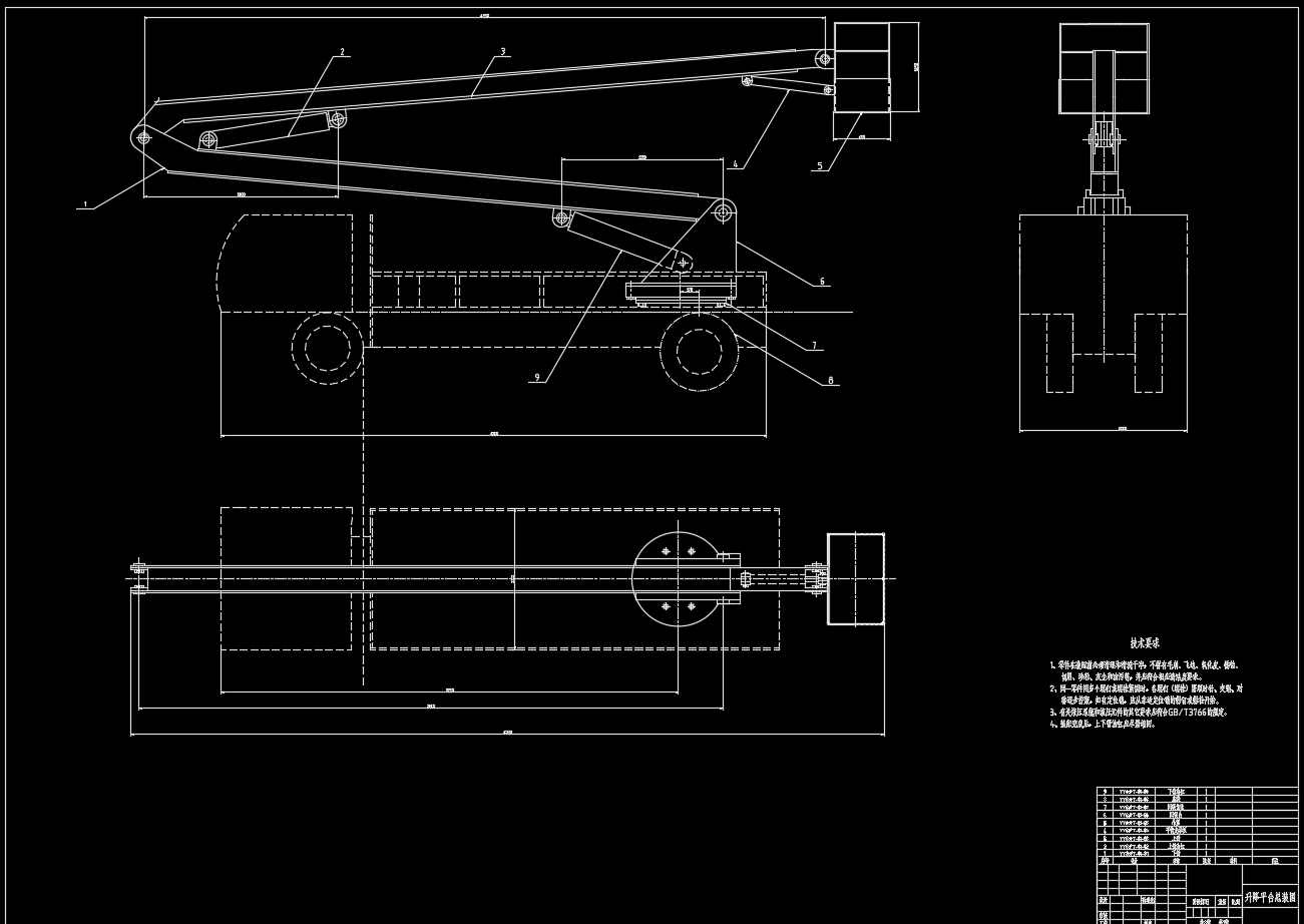
车载式液压升降平台-毕业设计全套(设计说明书 CAD图纸 开题报告 文件综述 液压系统图 液压站 ……)
分类:
机械设计资料
时间:2025-12-31 16:56
浏览:3
内容
车载式液压升降平台的设计,其核心在于实现安全、稳定的高空作业与物料搬运功能。这份毕业设计学习资料包,涵盖了从设计说明书、CAD图纸到开题报告、文献综述及液压系统原理图等关键内容,系统呈现了从概念构想到具体实现的完整技术路径。它着重于结构强度分析、液压驱动系统计算与稳定性设计,能有效帮助理解如何将理论转化为实用设计方案,并显著缩短开发周期。此处展示的图片为配套资源包内的资料截图,旨在让您在正式使用前,能对其内容有更全面、直观的初步认识。需要特别说明的是,资源包中专业资料需在相应的软件环境中才能完整浏览、编辑或进行后续操作。
评论
[
展开所有评论
]
上一篇
支承套零件加工工艺编程及夹具(论文+DWG图纸+开题报告+任务书+数控程序……)
下一篇
支承套零件加工工艺编程及夹具(论文+DWG图纸)
全部
2D/3D/图纸
机械设计资料
收录软文
最近更新
1
新KS型单级单吸离心泵的设计(说明书+CAD图纸+调研报告+任务书+英文翻译)
2
支架零件的工艺规程及钻6-Φ17孔的钻床夹具设计
3
车床改装成车削平面体的专用机床设计
4
支架零件图设计(论文+DWG图纸)
5
支架工艺工装设计 课程设计说明书
6
车床数控改造
7
支撑掩护式液压支架设计(论文+CAD图纸+翻译)
8
支撑掩护式液压支架总体及推移千斤顶设计(论文+CAD图纸)
9
车床连接座零件的工艺规程及机床夹具设计(说明书 CAD图纸 工序卡……)
10
支撑套筒零件工艺规程及夹具设计
买家指南
如何注册
如何购买
搜索商品
支付方式
卖家指南
如何出售
收费标准
入驻签约
安全交易
钓鱼防骗
预防盗号
谨防诈骗
实名认证
常见问题
如何充值
如何提现
真假客服
忘记密码
服务中心
我要咨询
我要建议
我要投诉
QQ客服
网站首页
|
关于我们
|
广告合作
|
联系我们
|
隐私条款
|
免责声明
|
网站地图
CopyRight 2014-2024 设计帮帮网 |
闽ICP备2024057214号
咨询热线
优先咨询网站“在线客服”,若不在线请在电脑端“工单管理””发起工单”