您好!欢迎来到
设计帮帮网
!
注册
登录
账号登录
QQ登录
支付宝登录
微信登录
短信登录
ID:
余额:
0.00
元
积分:
0
积分
充值
签到
已签到
提现
安全
认证
收藏
退出登录
网站首页
手机版
网站公告
帮助中心
工单管理
管理中心
财务管理
在线充值
快速提现
提现历史
财务明细
积分明细
我是买家
购物车
发布需求
需求管理
买入订单
建立自助交易
我是卖家
发布出售
商品管理
售出订单
建立自助交易
店铺管理
商家保证金
帮助咨询
帮助中心
投诉建议
联系客服
关于我们
用户管理
基本资料
认证中心
我的收藏
用户等级
账户安全
修改密码
登录记录
安全退出
https://web.sjbb168.com/
商品
商品
店铺
资讯
热门搜索:
自定义的
免费发布需求
免费发布任务
建立自助交易
免费发布商品
11
全部商品分类
2D/3D/图纸
分组:
机械设备
交通运输
换热器
泵
生产线/流水线
减速机/减速器
车库
电动机/发电机/柴油机
布局图/布置图
机器人/机械手
罐/发酵罐/反应罐/搅拌罐/储罐/油罐
反应釜/反应器/精馏塔/换热器/冷却器/冷凝器
其它
机械设计资料
分组:
毕业设计/课程设计
图纸
文档
其它
模具设计资料
分组:
模具毕业设计/课程设计
说明书/论文
图档
其它
车辆设计资料
分组:
毕业设计/课程设计
图纸
文档
其它
采矿工程资料
分组:
毕业设计/课程设计
图纸/文档
其它
食品/化工/制药
分组:
毕业设计/课程设计
说明书/论文/图纸
其它
土木/建筑/资料
分组:
毕业设计/课程设计
图纸/文档/资料
其它
电气/PLC/单片机
分组:
毕业设计/课程设计
说明书/论文
图纸/CAD
其它
给排水/污水处理
分组:
毕业设计/课程设计
图纸/文档
水利/暖通/供换热
分组:
毕业设计/课程设计
CAD图纸
文档资料
其它
技术资料/其它
分组:
工具/软件/动画
参考资料
文档资料
勘察报告
其它
首页
机械
车辆
模具
土木
PLC
减速器
机器人
机械手
空调系统
采矿
化工
手机版
当前位置:
首页
>
资讯
>
机械设计资料
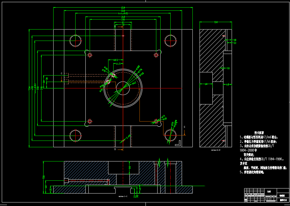
塑料垃圾桶注塑模具设计(设计说明书54页+9张CAD图纸+UG三维图+stp三维通用格式)
分类:
机械设计资料
时间:2026-02-08 08:40
浏览:34
内容
这份关于塑料垃圾桶注塑模具的学习资料,包含了详尽的设计说明书、多张二维图纸以及三维模型。它完整呈现了从产品结构分析到模具成型方案确定的全过程,重点阐释了如何通过合理的分型面设计、浇注系统与冷却系统布局,来确保制品外观质量与尺寸精度,同时提升成型效率。资料深入探讨了脱模机构、排气等关键结构的设计考量,对理解此类日常用品的成型技术核心颇有助益。三维模型便于直观观察模具内部结构,实用价值突出。
评论
[
展开所有评论
]
上一篇
双离合变速器设计(CAD装配图 +设计说明书)
下一篇
PEX250×1200细碎颚式破碎机CAD 图(焊接)
全部
2D/3D/图纸
机械设计资料
收录软文
最近更新
1
设计制定差速器零件的加工工 艺和设计12-ø12.5孔的钻床夹具
2
设计-插秧机系统设计
3
设计-MQ100 门式起重机总体
4
西门子840D系统出现25050轮廓监控报警的几种解决方法
5
蜗轮减速器箱体加工工艺去套毕业设计
6
葡萄采摘机的设计(说明书+CAD图纸+solidworks三维图+开题报告+任务书+运动仿真视频+答辩PPT……)
7
葡萄园小型开沟机的设计(说明书+14张CAD图纸+开题报告+任务书……)
8
苹果套袋机(论文+CAD图纸)
9
芡实剥壳机(cad+pro+说明书)
10
膜片离合器设计(说明书+CAD图纸)
买家指南
如何注册
如何购买
搜索商品
支付方式
卖家指南
如何出售
收费标准
入驻签约
安全交易
钓鱼防骗
预防盗号
谨防诈骗
实名认证
常见问题
如何充值
如何提现
真假客服
忘记密码
服务中心
我要咨询
我要建议
我要投诉
QQ客服
网站首页
|
关于我们
|
广告合作
|
联系我们
|
隐私条款
|
免责声明
|
网站地图
CopyRight 2014-2024 设计帮帮网 |
闽ICP备2024057214号
咨询热线
优先咨询网站“在线客服”,若不在线请在电脑端“工单管理””发起工单”