机械设计资料
返回首页
会员中心
功能菜单
联系我们
https://web.sjbb168.com/
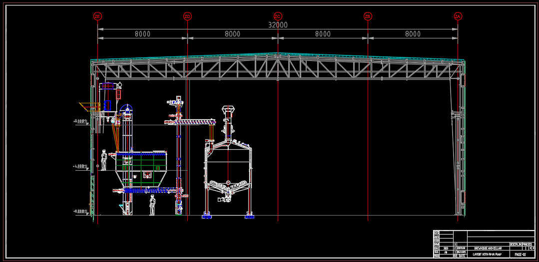
啤酒厂CAD平面布置图
来源: 阅读:38
网站管理员
发布于 2026-01-27 11:20
查看主页
啤酒厂的平面布置图,可不仅仅是几张简单的线条。它直观呈现了从原料处理到糖化、发酵乃至灌装的全流程布局,确保各区域衔接顺畅、物流高效。这份图纸是规划与沟通的核心工具,能有效优化空间利用率,规避潜在瓶颈,为后续环节奠定坚实基础。一份精准的布置图,对保障流程的连贯性与操作安全性至关重要,是项目推进中不可或缺的实用资料。
免责声明:本文为用户发表,不代表网站立场,仅供参考,不构成引导等用途。
机械设计资料
相关推荐
XX花园1#楼工程项目施工投标文件毕业设计【约69000字、CAD图纸、任务书、外文翻译、中期检查表、横道图、调研报告、工管指导记录表】
02/01
43
核桃去壳机(cad+pro+说明书)
03/29
12
5自由度的关节型喷漆机器人的设计(设计说明书+CAD图纸+外文翻译)
02/02
44
订书机外壳注射模设计(设计说明书+CAD图纸)
02/08
38
料筒螺杆(CAD)
01/12
39
首页
分类
购物车
消息
我的
想要更低价购买?
长按二维码,联系客服享优惠折扣
微信号:
yj99cn