机械设计资料
返回首页
会员中心
功能菜单
联系我们
https://web.sjbb168.com/
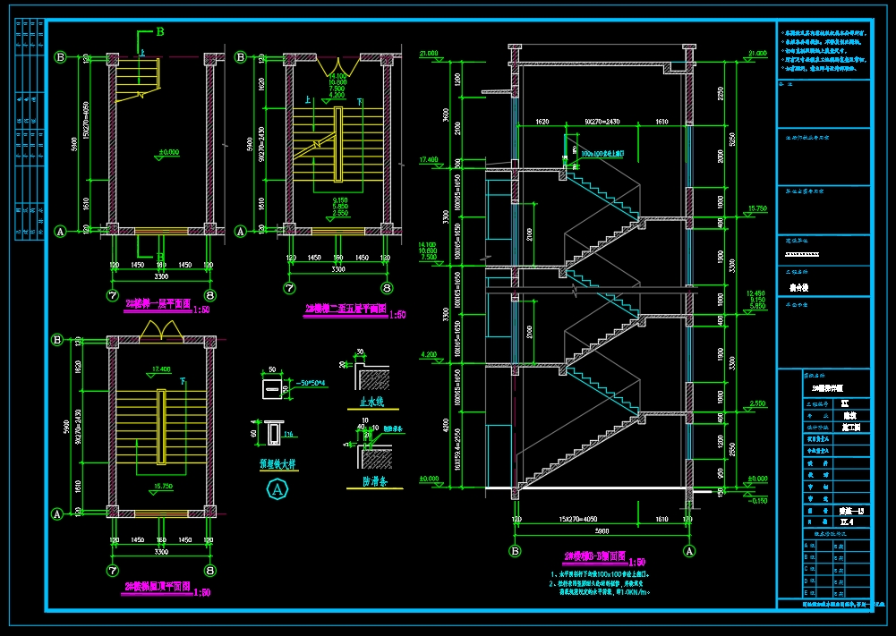
兰溪市某公司宿舍楼CAD图纸
来源: 阅读:14
网站管理员
发布于 2026-01-26 16:10
查看主页
这份兰溪市某公司宿舍楼的CAD图纸,为项目提供了精确的空间与结构表达。它清晰展示了各楼层平面布局、房间功能划分及建筑细部,是进行工程量核算、施工交底和现场管理的关键依据。图纸确保了建筑信息在各个环节准确传递,有效指导后续工作,对控制建设成本与保障施工质量具有重要作用。相关学习资料可供有需要者查阅参考。
免责声明:本文为用户发表,不代表网站立场,仅供参考,不构成引导等用途。
机械设计资料
相关推荐
道路垃圾清扫机设计【论文+CAD图纸+proe三维+SW三维+开题报告+任务书】扫地机 垃圾清理机 扫地车
02/03
9
4层1585.43平 东莞市XX厂房 建筑+结构图
01/26
16
行星减速机SolidWorks
01/13
21
车床离合器齿轮的加工工艺规程及铣16槽专用夹具设计【说明书+CAD图纸+工序卡+工程卡】
02/03
11
毕业设计 CA6140普通车床数控改造设计【86页设计说明书(论文)+8张CAD图纸(A0-电气原理图+A0-数控总图+A1-横向进给系统图+A1-主轴箱装配图+A1-自动回转刀架+A1-纵向进给系统图+A2-调隙式齿轮+A2-横向丝杠支座】
02/06
7
首页
分类
购物车
消息
我的
想要更低价购买?
长按二维码,联系客服享优惠折扣
微信号:
yj99cn