机械设计资料
返回首页
会员中心
功能菜单
联系我们
https://web.sjbb168.com/
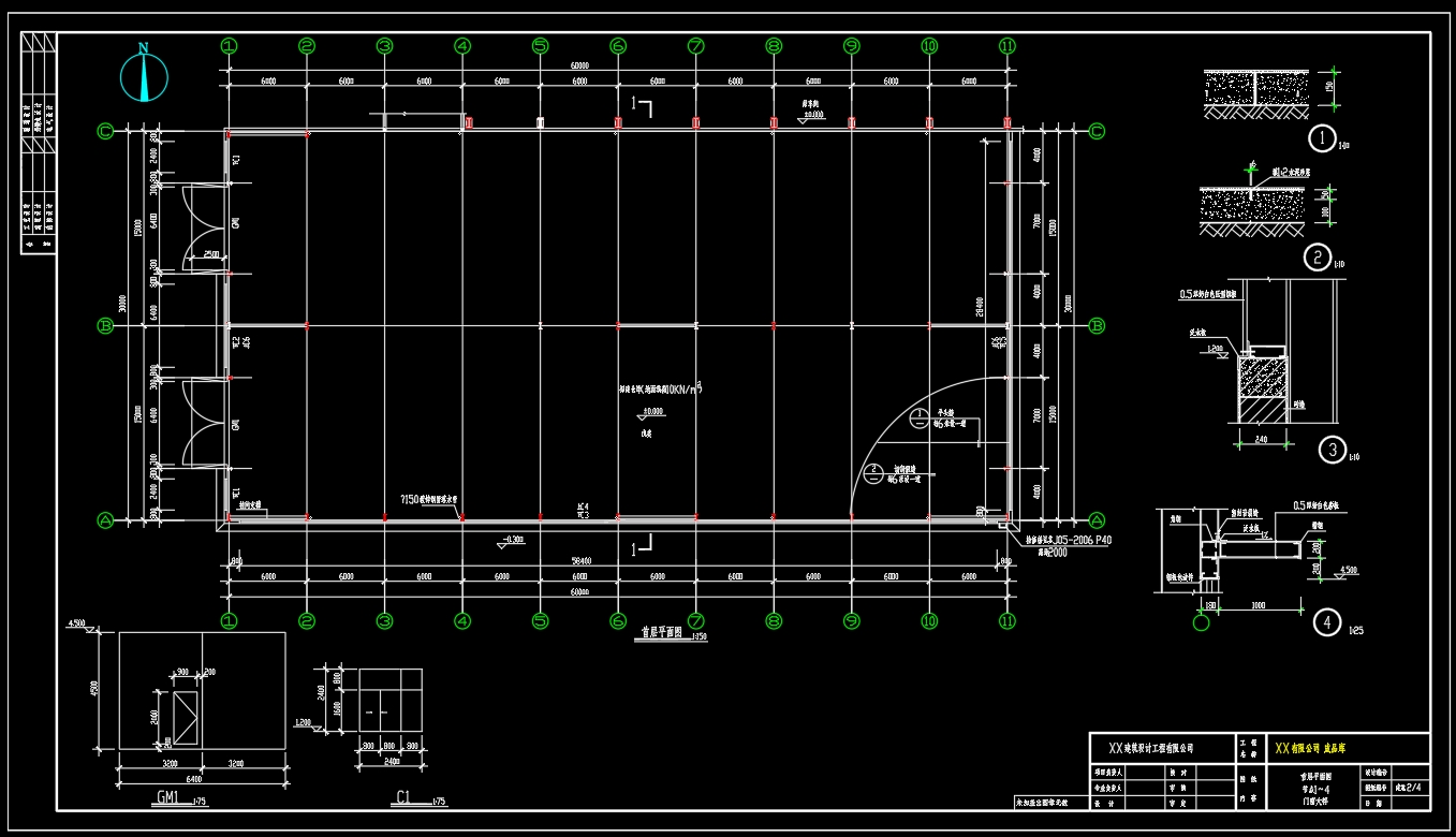
常州XX有限公司成品库CAD图纸
来源: 阅读:20
网站管理员
发布于 2026-01-26 14:50
查看主页
这份成品库CAD图纸,清晰展现了库区的整体布局与货架定位。它精确规划了存储区域、通道走向及物流动线,为空间高效利用与日常作业顺畅提供了直接依据。图纸中的尺寸标注与区域划分,确保了货品存取的有序性,是库房现场管理不可或缺的实用资料。
免责声明:本文为用户发表,不代表网站立场,仅供参考,不构成引导等用途。
机械设计资料
相关推荐
犁刀变速齿轮箱体的加工工艺及钻4-ф13mm孔、铰2-ф9mm孔夹具设计
12/20
24
商场百货大楼哈尔滨某3层设计(2820平,毕业论文90页、建筑图,结构图)
02/01
13
ca6140拨叉的设计,型号831002
01/10
30
地下升降式自动化立体车库(论文+DWG图纸)
01/29
13
JX104减速器锥柱二级传动(说明书+CAD图纸)
02/07
10
首页
分类
购物车
消息
我的
想要更低价购买?
长按二维码,联系客服享优惠折扣
微信号:
yj99cn