机械设计资料
返回首页
会员中心
功能菜单
联系我们
https://web.sjbb168.com/
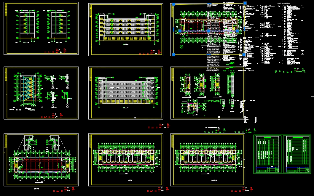
广东省深圳市XX工业区宿舍-建筑CAD图纸
来源: 阅读:12
网站管理员
发布于 2026-01-26 14:00
查看主页
这份关于深圳XX工业区宿舍的CAD图纸,为同类项目提供了详实的参考范本。图纸清晰展现了建筑布局、结构构件及管线系统的空间关系,其严谨的标注体系确保了信息的准确传递。这类资料对于理解工业区配套建筑的功能规划与空间利用极具价值,能有效辅助相关工作的开展,是值得收藏的实用资料。
免责声明:本文为用户发表,不代表网站立场,仅供参考,不构成引导等用途。
机械设计资料
相关推荐
PE-1200х1600颚式破碎机的设计(论文 cad图 开题报告 任务书 文献翻译)
02/08
8
车床主轴箱箱体左侧8-M8螺纹攻丝机设计(论文+CAD图纸+开题报告+任务书)
02/08
5
基于proe的路宝车发动机配气机构的三维建模设计【说明书+proe三维+cad图纸+开题报告+任务书+外文翻译+答辩相关
12/27
30
手动压床图(共17张CAD图纸)
01/12
46
螺旋榨汁机设计(说明书+CAD图纸+答辩PPT)
01/09
30
首页
分类
购物车
消息
我的
想要更低价购买?
长按二维码,联系客服享优惠折扣
微信号:
yj99cn