机械设计资料
返回首页
会员中心
功能菜单
联系我们
https://web.sjbb168.com/
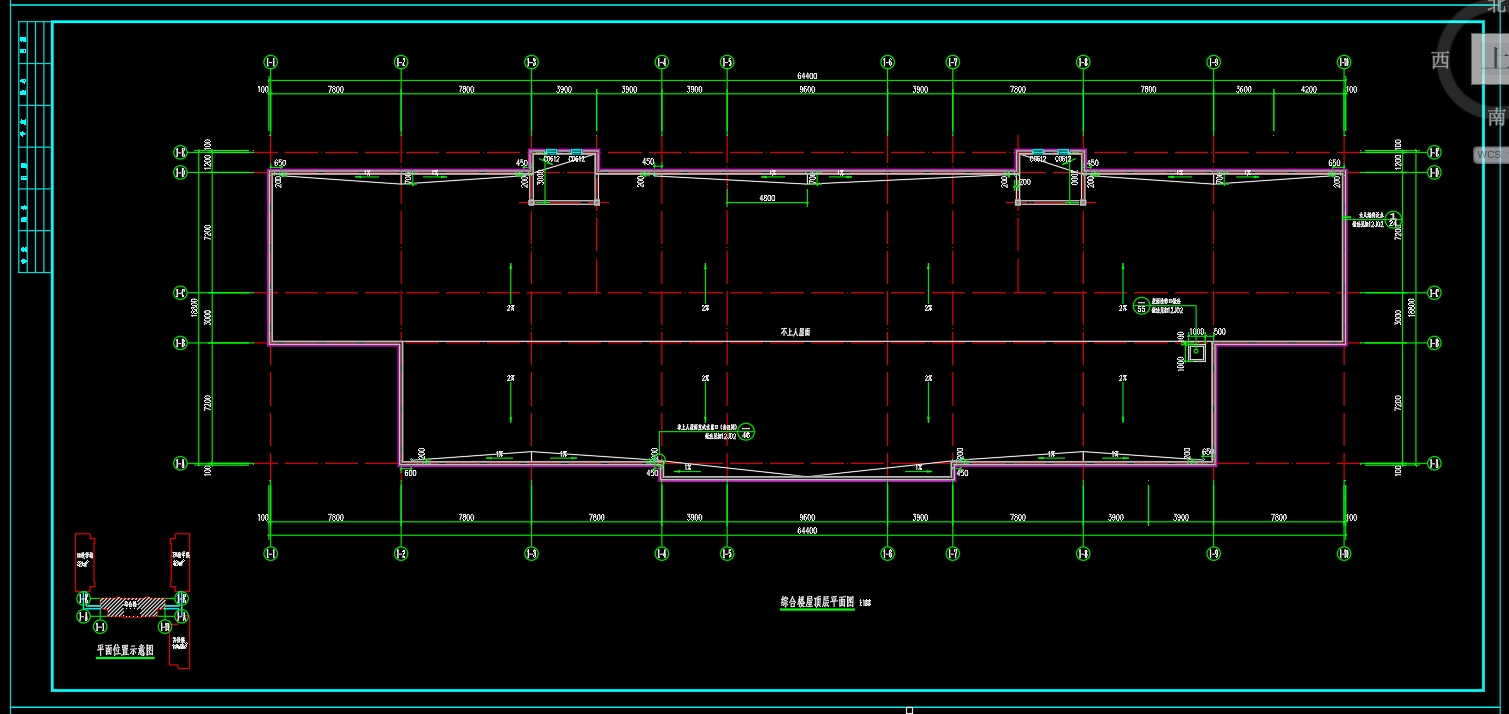
新疆喀什疏附县XX双语初级中学综合楼工程CAD图纸
来源: 阅读:21
网站管理员
发布于 2026-01-26 12:30
查看主页
这份关于新疆喀什疏附县XX双语初级中学综合楼工程的CAD图纸,是项目建设的核心依据。它精确表达了建筑的空间布局、结构形式与各专业系统的协调关系。图纸确保了施工的准确性与高效性,为这座校园建筑从设计构想转化为实体空间提供了严谨可靠的技术支撑,是工程顺利推进不可或缺的实用资料。
免责声明:本文为用户发表,不代表网站立场,仅供参考,不构成引导等用途。
机械设计资料
相关推荐
PE1200×1500复摆颚式破碎机CAD图纸
02/08
6
ZH1105柴油机气缸体三面粗镗组合机床设计(夹具设计)(论文+CAD图纸+开题报告+任务书+工序图+实习报告+翻译+生
01/27
18
卷扬机的结构设计【说明书+11张CAD图纸+proe三维+答辩ppt】
02/04
6
凸轮轴毕业设计
01/11
28
机械制造毕业设计-某钻孔卧式组合机床多轴箱设计
01/20
19
首页
分类
购物车
消息
我的
想要更低价购买?
长按二维码,联系客服享优惠折扣
微信号:
yj99cn