机械设计资料
返回首页
会员中心
功能菜单
联系我们
https://web.sjbb168.com/
河源市XX综合楼CAD图纸
来源: 阅读:14
网站管理员
发布于 2026-01-26 11:00
查看主页
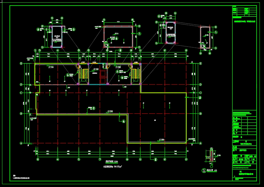
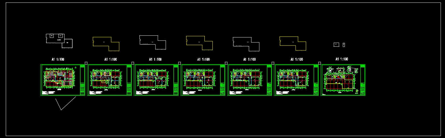
这份河源市XX综合楼的CAD图纸,是项目从方案到施工的关键技术载体。它精确表达了建筑各专业的设计信息,包括平面布局、立面造型、结构构件及管线综合等。图纸确保了各环节沟通无误,是现场施工的直接依据,对控制项目质量、成本与进度至关重要。这份严谨的电子文档,为同类项目提供了极具价值的实用资料参考。
免责声明:本文为用户发表,不代表网站立场,仅供参考,不构成引导等用途。
机械设计资料
相关推荐
膜片离合器设计(说明书+CAD图纸)
01/05
36
电主轴的机械设计(说明书 CAD图纸 开题报告 任务书 外文翻译)
01/18
23
红枣切片机的设计【说明书+CAD图纸+solidworks三维+开题报告+答辩PPT】
12/20
24
机械制造基础课程设计设计“CA6140车床拨叉”零件03的机械加工工艺及18H11槽粗铣夹具
01/20
25
JS749 硬币分拣机的设计( CAD+三维图+说明书)
01/29
11
首页
分类
购物车
消息
我的
想要更低价购买?
长按二维码,联系客服享优惠折扣
微信号:
yj99cn