机械设计资料
返回首页
会员中心
功能菜单
联系我们
https://web.sjbb168.com/
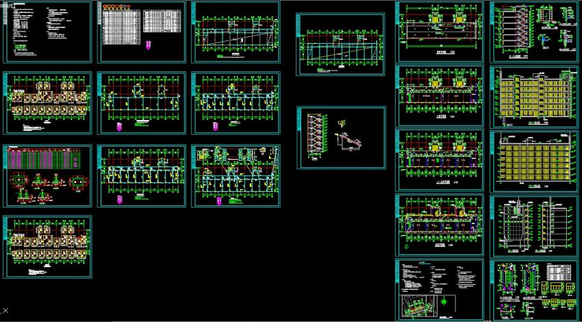
6层3068.32平南宁XX中学楼 建筑+结构图
来源: 阅读:21
网站管理员
发布于 2026-01-26 01:00
查看主页
这栋6层3068.32平的教学楼,其建筑与结构图纸是项目落地的核心依据。建筑图明确了各楼层功能布局、空间尺度及立面造型,直接指导施工。结构图则严谨定义了梁、板、柱的布置、截面尺寸及配筋,确保建筑整体的安全稳固与抗震性能。这两套图纸相辅相成,将设计意图转化为可精准施工的指导文件,是保障工程质量和功能实现的关键实用资料。
免责声明:本文为用户发表,不代表网站立场,仅供参考,不构成引导等用途。
机械设计资料
相关推荐
轧机详细结构图
01/24
27
组合专机-粗镗活塞销孔专用机床及夹具设计(机床生产率计算卡 说明书 CAD 液压原理图……)
12/24
33
小型蘑菇定向切片机设计(设计说明书+CAD图纸)
02/06
9
CA6140车床”拨叉零件的机械加工工艺规程及工艺装备831005(毕业论文 CAD图纸 工序卡)
02/06
11
【6层】4786平米六层框架住宅底层为车库(计算书、施组、建筑、结构图)
01/27
12
首页
分类
购物车
消息
我的
想要更低价购买?
长按二维码,联系客服享优惠折扣
微信号:
yj99cn