机械设计资料
返回首页
会员中心
功能菜单
联系我们
https://web.sjbb168.com/
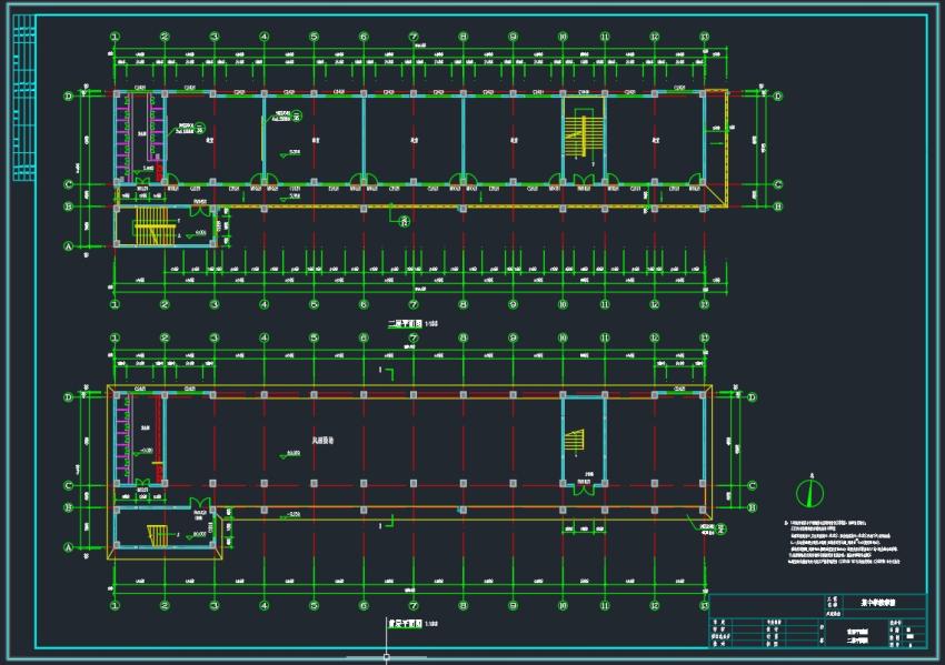
6层3552.4平湛江XX中学教学楼 建筑+结构
来源: 阅读:58
网站管理员
发布于 2026-01-26 00:50
查看主页
这栋六层教学楼总建筑面积3552.4平方米,是湛江XX中学的核心教学场所。其建筑设计充分考虑了采光、通风与功能分区,为师生提供了明亮舒适的教学环境。结构设计则严格遵循安全规范,采用可靠的框架体系,确保了建筑的整体稳固与抗震性能。整栋楼布局合理,流线清晰,有效支持了多样化的教学活动,是校园内一座兼具实用性与安全性的重要建筑。
免责声明:本文为用户发表,不代表网站立场,仅供参考,不构成引导等用途。
机械设计资料
相关推荐
250L单层储罐
03/03
33
直线振动筛激振器SolidWorks三维图
03/22
41
平面六杆机构的运动仿真(毕业论文+CAD图纸+开题报告+外文翻译)
12/20
63
1780R2粗轧机压下系统设计(设计说明书+CAD图纸+翻译+答辩问题)
04/04
29
湛江XX办公楼CAD图纸
01/26
45
首页
分类
购物车
消息
我的
想要更低价购买?
长按二维码,联系客服享优惠折扣
微信号:
yj99cn