机械设计资料
返回首页
会员中心
功能菜单
联系我们
https://web.sjbb168.com/
6层4378.6平上饶市XX住宅楼 建筑+结构图
来源: 阅读:9
网站管理员
发布于 2026-01-26 00:10
查看主页
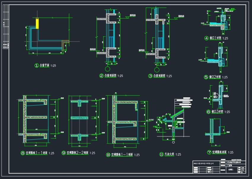
这栋6层住宅楼,总建筑面积4378.6平方米,其建筑与结构图纸是项目落地的核心依据。建筑图清晰展现了各层平面布局、立面造型及细部构造,直接指导施工放样与空间实现。结构图则严谨定义了梁、板、柱、基础等承重构件的布置、尺寸与配筋,确保建筑整体的安全稳固。这套图纸共同构成了从设计构思到实体建造的精确技术语言,是控制工程质量、成本与进度的关键实用资料。
免责声明:本文为用户发表,不代表网站立场,仅供参考,不构成引导等用途。
机械设计资料
相关推荐
ZH1105柴油机气缸体三面粗镗组合机床设计(夹具设计)(论文+CAD图纸+开题报告+任务书+工序图+实习报告+翻译+生
01/27
18
框架结构五层局部六层大学教学楼5100平米左右
01/26
20
拉式膜片弹簧离合器(论文 CAD图纸)
01/31
12
运载机器人的设计(论文+CAD图纸)
12/25
25
空心轴的设计校核[CAD图纸+说明书]
01/09
40
首页
分类
购物车
消息
我的
想要更低价购买?
长按二维码,联系客服享优惠折扣
微信号:
yj99cn