机械设计资料
返回首页
会员中心
功能菜单
联系我们
https://web.sjbb168.com/
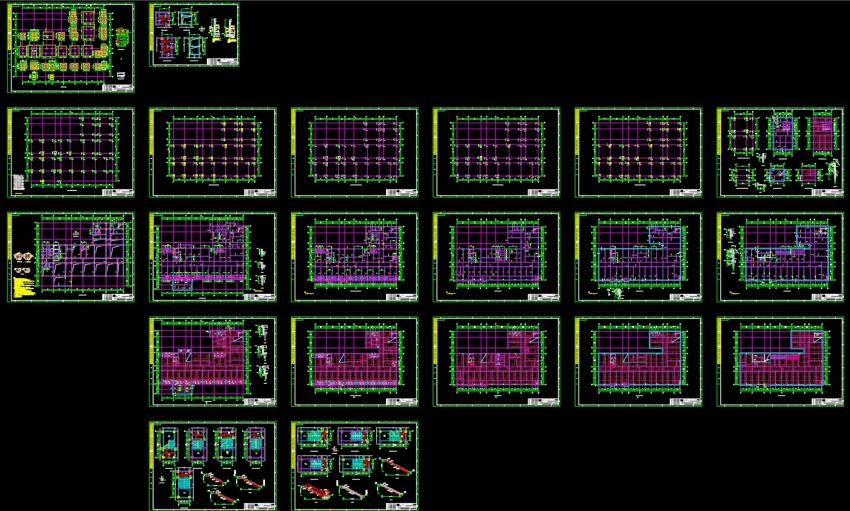
6层8780.9平 合山市X医院楼 含建筑及结构图
来源: 阅读:31
网站管理员
发布于 2026-01-25 23:30
查看主页
这栋6层8780.9平米的合山市X医院楼,其建筑与结构图纸是项目落地的核心依据。建筑图精准规划了各楼层功能布局、流线及外观,确保医疗流程高效与就医环境舒适。结构图则严谨定义了梁、板、柱的布置与配筋,为整栋楼的安全稳固提供了根本保障。这两套图纸紧密配合,共同构成了项目施工不可或缺的严谨指导。相关实用资料可供深入参考。
免责声明:本文为用户发表,不代表网站立场,仅供参考,不构成引导等用途。
机械设计资料
相关推荐
ZH1105气缸盖三面钻组合机床设计
01/27
32
机械式拧瓶机的设计及工程分析【论文 ug三维 9张CAD图纸 开题报告 任务书】
12/29
47
煤矿井巷工程课程设计(玉龙煤矿1450水平西运输大巷施工设计)(共48页)
02/08
29
MT五档变速箱毕业设计资料(论文+CAD图纸)
02/08
33
垂直循环机械立体停车设备
02/01
39
首页
分类
购物车
消息
我的
想要更低价购买?
长按二维码,联系客服享优惠折扣
微信号:
yj99cn