收录软文
返回首页
会员中心
功能菜单
联系我们
https://web.sjbb168.com/
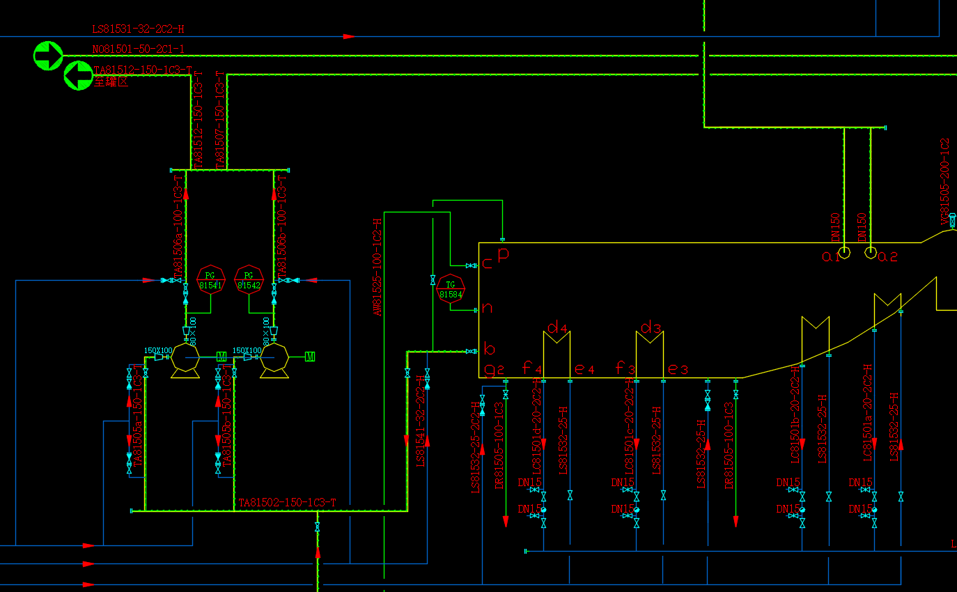
焦化化产CAD流程图
来源: 阅读:41
网站管理员
发布于 2026-01-24 14:36
查看主页
在焦化化产领域,CAD流程图直观呈现工艺环节、设备连接及物料走向,为后续设备选型、管道布置提供直观依据。通过清晰标注物料种类与流向,帮助梳理复杂系统逻辑,及时发现流程瓶颈与潜在风险,显著缩短调整周期,降低重复修改成本,是该领域重要的实用资料。
免责声明:本文为用户发表,不代表网站立场,仅供参考,不构成引导等用途。
收录软文
相关推荐
解魔方机器人STP
01/25
36
用微机数控系统改造C6132型车床设计(论文 CAD图纸 开题报告 任务书 文献翻译 电路图 加工程序……)
01/01
47
盖冒垫片落料拉深复合模设计(论文+CAD图纸+开题报告+任务书+文献翻译……)
02/07
24
市政下水道疏通机器人的设计(设计说明书+CAD图纸+SolidWorks三维+CAE有限元分析+CAM_NC零件加工+动画)
02/02
27
三路橄榄机(SW+x_t)
01/10
45
首页
分类
购物车
消息
我的
想要更低价购买?
长按二维码,联系客服享优惠折扣
微信号:
yj99cn