收录软文
返回首页
会员中心
功能菜单
联系我们
https://web.sjbb168.com/
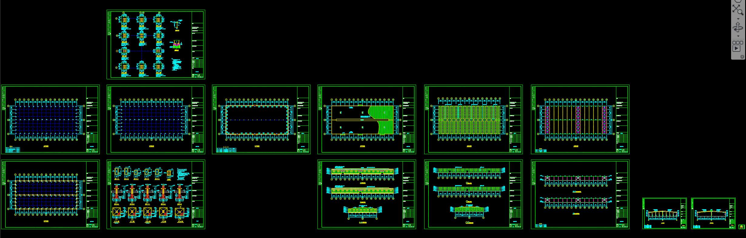
钢结构厂房 CAD
来源: 阅读:22
网站管理员
发布于 2026-01-23 05:36
查看主页
用CAD做钢结构厂房设计,先搭整体框架,把柱子、梁这些关键部件建模,再细化节点连接,像螺栓怎么装、焊缝怎么处理都能标清楚。还能分析结构稳不稳,材料够不够,帮着优化布局,少用料还结实。弄好后能出图,给后续施工当实用资料。
免责声明:本文为用户发表,不代表网站立场,仅供参考,不构成引导等用途。
收录软文
相关推荐
BL台式车床的进给结构的设计(论文+CAD图纸+开题报告+任务书……)
02/05
10
贯通式双联驱动桥(中后桥)设计(论文+CAD图纸+开题报告+任务书)
02/02
16
龙门刨横梁装配【CAD+PDF】
12/24
23
QTZ40塔式起重机总体及平衡臂设计(论文 CAD图纸 开题报告 任务书 外文翻译……)
02/08
6
药瓶及其瓶盖的塑料模具的设计【任务书+说明书+CAD图纸】
02/06
5
首页
分类
购物车
消息
我的
想要更低价购买?
长按二维码,联系客服享优惠折扣
微信号:
yj99cn