收录软文
返回首页
会员中心
功能菜单
联系我们
https://web.sjbb168.com/
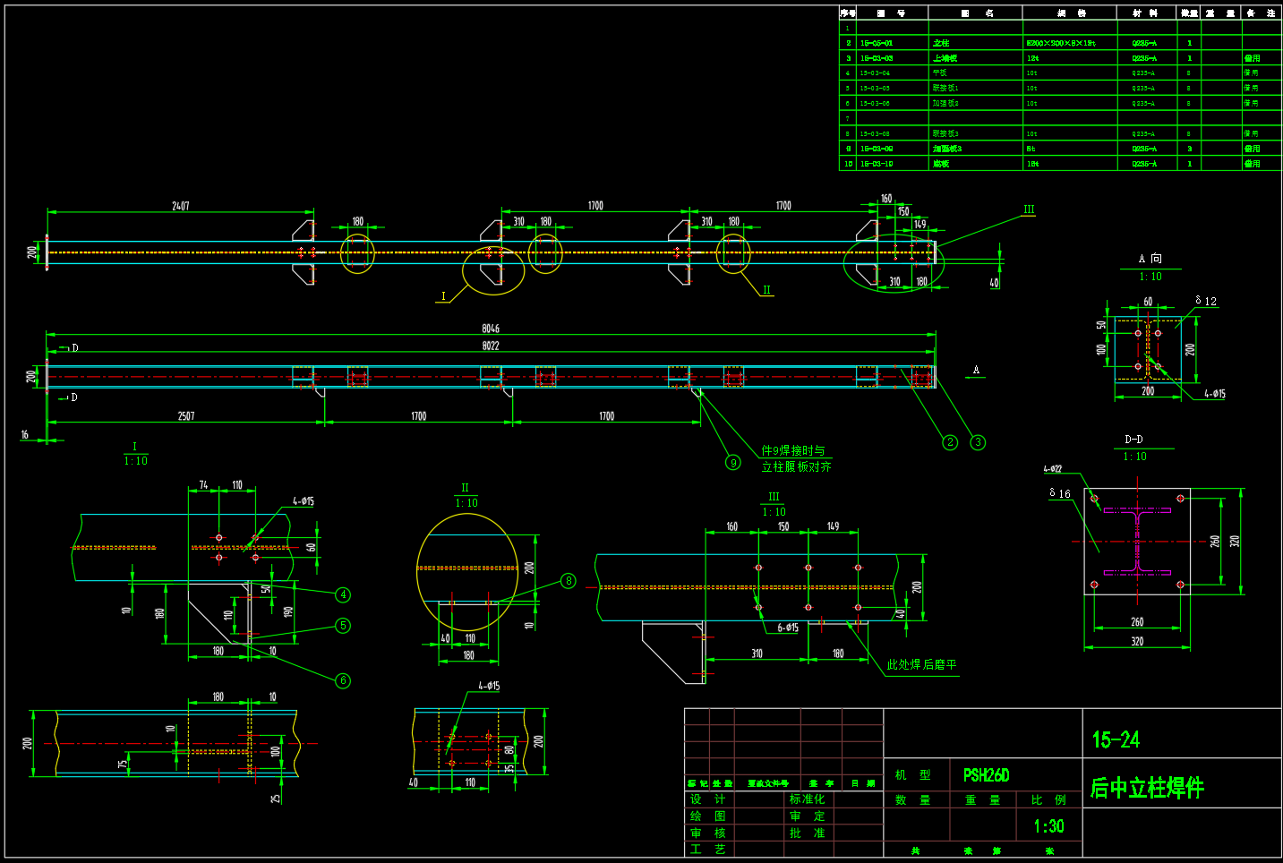
五层升降横移式立体车库框架CAD图纸
来源: 阅读:19
网站管理员
发布于 2026-01-22 22:00
查看主页
五层升降横移式立体车库框架CAD图纸,主要用于直观呈现车库整体布局及关键承重部件的结构关系。通过精确绘制立柱、横梁等核心构件的尺寸参数与连接节点,为结构强度分析和稳定性校核提供基础数据。图纸清晰标注各部件的装配关系,可帮助快速识别安装干涉点,有效减少设计偏差,显著缩短方案优化周期,是相关工程设计的实用资料。
免责声明:本文为用户发表,不代表网站立场,仅供参考,不构成引导等用途。
收录软文
相关推荐
轿车盘式制动器结构设计【任务书+说明书+CAD图纸+外文翻译】
02/06
8
山东某火锅店装修施工图工装
02/09
6
谷物干燥机的设计(论文+CAD图纸+外文翻译)
01/07
23
可伸缩带式输送机结构设计(论文+CAD图纸+开题报告+任务书……)
01/29
17
轻型货车鼓式制动器设计(说明书 CAD图纸 开题报告 任务书 翻译)
01/29
12
首页
分类
购物车
消息
我的
想要更低价购买?
长按二维码,联系客服享优惠折扣
微信号:
yj99cn