机械设计资料
返回首页
会员中心
功能菜单
联系我们
https://web.sjbb168.com/
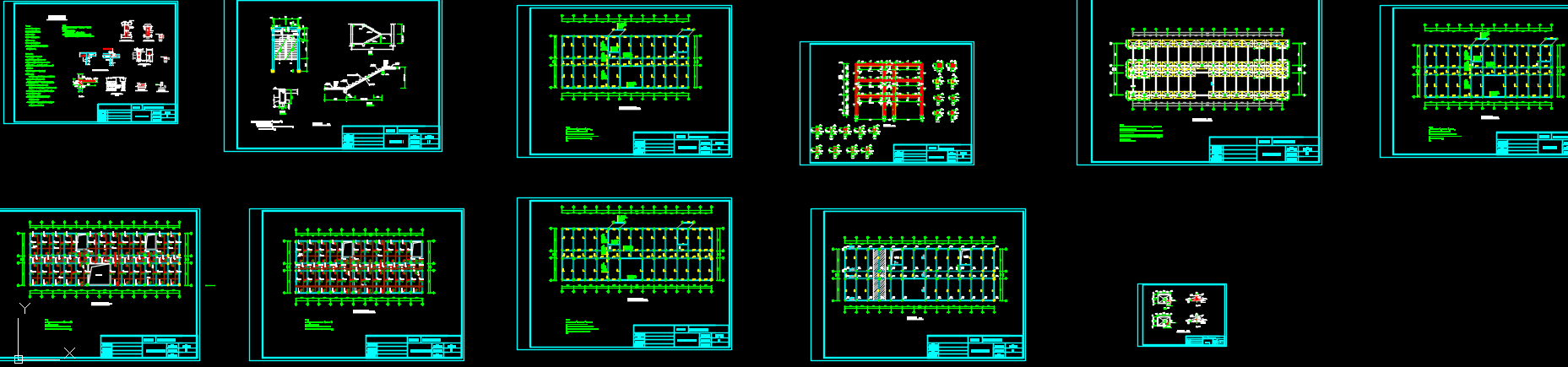
【5层】4300平米农业局办公楼毕业设计(计算书、施组、建筑、结构图、开题报告、任务书、译文)
来源: 阅读:5
网站管理员
发布于 2026-02-07 03:30
查看主页
这份针对五层4300平米农业局办公楼的设计学习资料,涵盖了计算书、施工组织设计、建筑与结构图纸等核心内容。它系统展示了从开题到成果的全过程,为同类公共建筑的设计提供了实用参考。资料严格遵循规范,结构清晰,重点呈现了功能布局、荷载计算与构造处理等关键技术要点,逻辑严谨,有助于深化对办公楼设计要点的理解。
免责声明:本文为用户发表,不代表网站立场,仅供参考,不构成引导等用途。
机械设计资料
相关推荐
《固体废物工程》课程设计——某镇垃圾填埋场设计方案及全套图
02/06
13
江苏某4层小学教学楼设计(计算书+CAD图纸+开题报告+任务书+外文翻译) 建筑面积约4000m2
02/07
7
平行四边形双足步行机器人的设计与研究【三维solidworls+CAD图纸+毕业论文+运动仿真视频】
12/29
27
食用油桶输送机 平顶链板输送机(套图)
02/06
4
奥的斯电梯16KG03004通用电梯结构 详细完整3D模型
01/30
17
首页
分类
购物车
消息
我的
想要更低价购买?
长按二维码,联系客服享优惠折扣
微信号:
yj99cn