机械设计资料
返回首页
会员中心
功能菜单
联系我们
https://web.sjbb168.com/
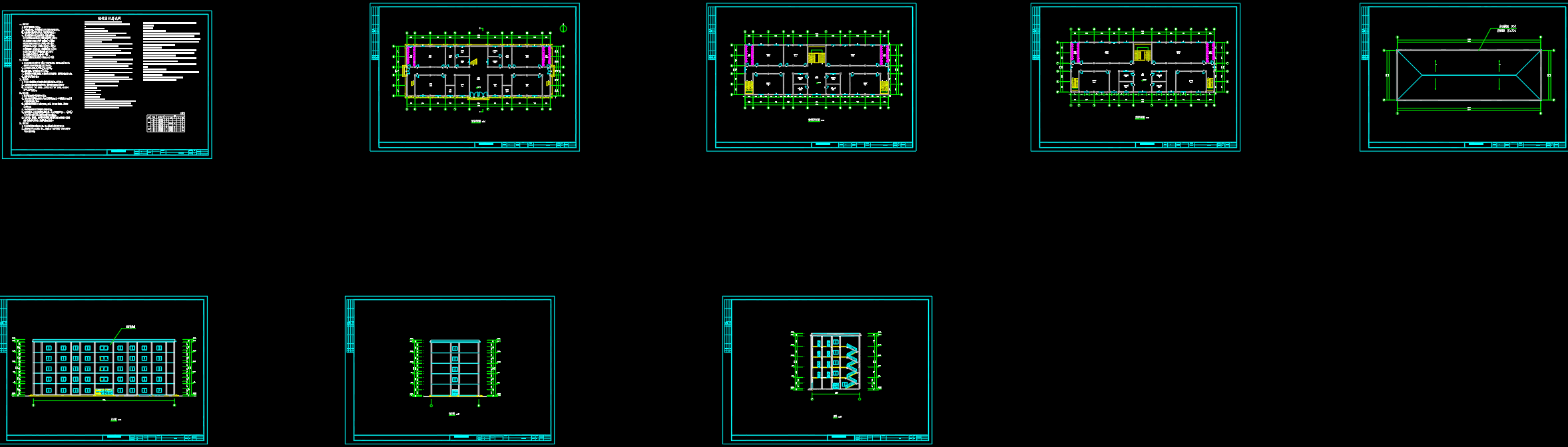
某5层建筑面积约5000平方米的大学外语教学楼设计
来源: 阅读:5
网站管理员
发布于 2026-02-06 21:10
查看主页
这座五层的外语教学楼,面积约五千平方米,设计核心在于营造高效、专注的语言学习环境。建筑布局清晰划分了教学区、自主学习区与教师教研区,通过连廊顺畅连接。大量采光良好的教室与隔音研讨室,保障了听说训练的纯粹性。楼内融入了便捷的数字语言学习系统,资源触手可及。整体环境注重人文氛围的营造,旨在通过空间引导交流,显著提升外语教与学的整体效能。相关实用资料可供深入参考。
免责声明:本文为用户发表,不代表网站立场,仅供参考,不构成引导等用途。
机械设计资料
相关推荐
汽车用螺旋千斤顶设计【说明书+6张CAD图纸】 最大起重量65000N;最大起升高度240mm;
02/04
6
支承套零件加工工艺编程及夹具设计(论文 CAD图纸 开题报告 任务书 加工程序)
12/31
33
玉米秸秆粉碎机设计(设计说明书+CAD图纸+SW三维图+仿真视频)
12/21
28
7层巷道堆垛CAD方案
02/01
10
jzc350混凝土搅拌机总体设计及搅拌系统优化设计(说明书+CAD图纸+SolidWorks三维+翻译)
12/29
31
首页
分类
购物车
消息
我的
想要更低价购买?
长按二维码,联系客服享优惠折扣
微信号:
yj99cn