机械设计资料
返回首页
会员中心
功能菜单
联系我们
https://web.sjbb168.com/
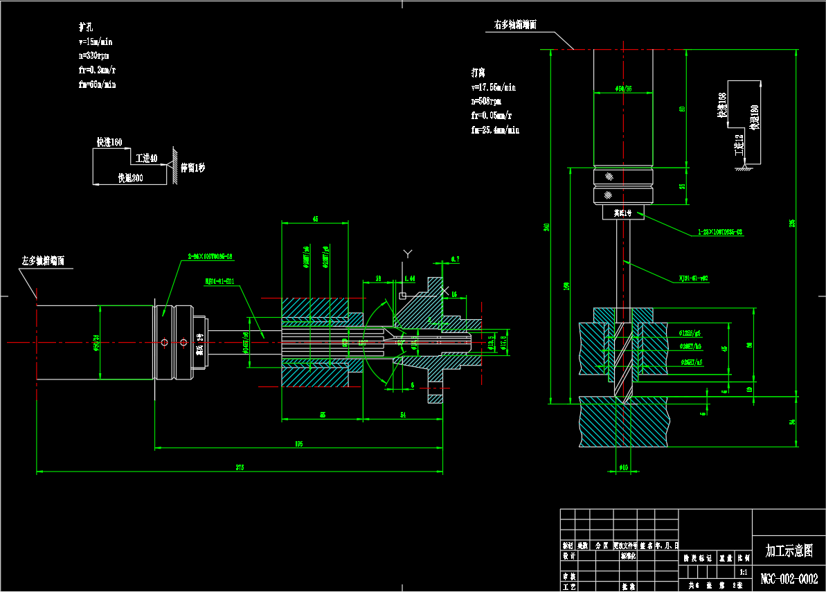
单缸泵体打窝、扩孔专机总体及其夹具设计(论文+CAD图纸+开题报告+外文翻译+生产率计算卡)
来源: 阅读:3
网站管理员
发布于 2026-02-06 18:20
查看主页
针对单缸泵体加工中的打窝、扩孔工序,传统方式效率较低且精度不易保证。为此,专门设计的专机总体方案集成高效动力系统与刚性结构,确保加工过程稳定可靠。与之配套的专用夹具采用定位与夹紧一体化构思,能快速准确地装夹工件,有效减少辅助时间。这套方案通过工序集中与专用化设计,显著缩短了加工周期,并提升了孔系的位置精度与一致性。相关的学习资料涵盖了从概念构思到详细设计的完整逻辑,为类似工艺难题提供了经过验证的实用解决思路。
免责声明:本文为用户发表,不代表网站立场,仅供参考,不构成引导等用途。
机械设计资料
相关推荐
高压共轨燃油实验系统平台的设计(说明书+CAD+SolidWorks+开题报告+文件综述)
01/19
30
座椅支架冲压工艺分析及模具设计(论文+CAD图纸+开题报告)
01/30
13
施工组织设计(含建筑图,结构图,施工进度计划表,施工平面布置图,施工组织设计论文)
01/26
14
支撑套筒零件工艺规程及夹具设计
12/31
30
4个自由度焊接机器人毕业设计,含焊接机器人装配图,机器人手腕,工作台,开题报告,说明书
02/06
5
首页
分类
购物车
消息
我的
想要更低价购买?
长按二维码,联系客服享优惠折扣
微信号:
yj99cn