机械设计资料
返回首页
会员中心
功能菜单
联系我们
https://web.sjbb168.com/
板坯连铸弧形结晶器总体设计(论文+CAD图纸+开题报告+实习报告+外文翻译)
来源: 阅读:7
网站管理员
发布于 2026-02-06 08:30
查看主页
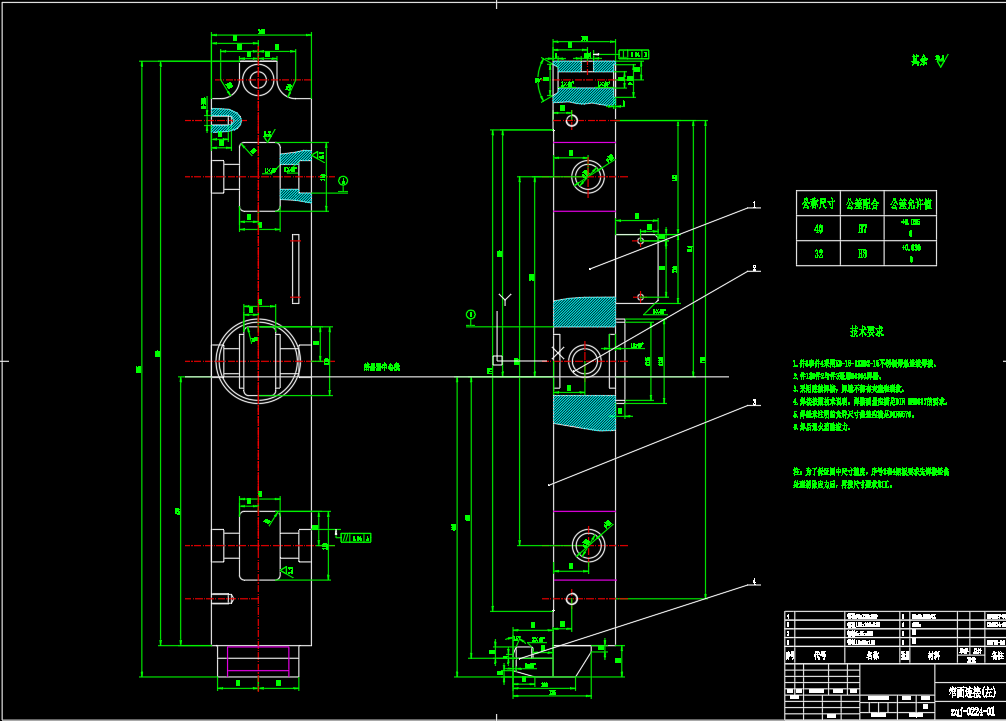
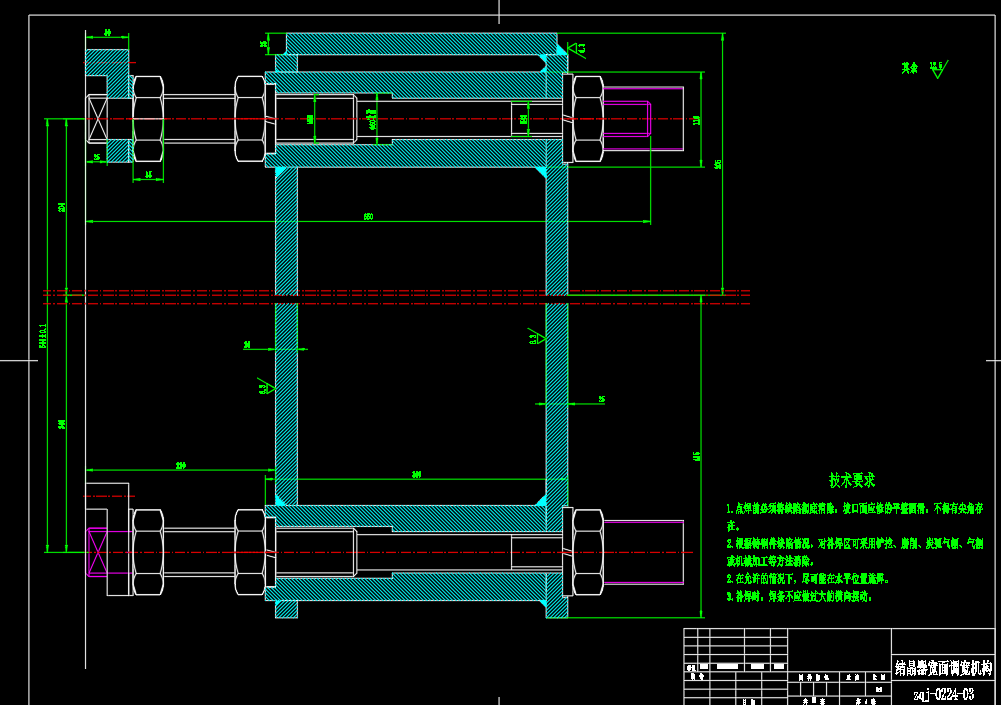
板坯连铸弧形结晶器的总体设计,直接关系到铸坯质量与后续工艺顺畅性。其核心在于弧形结构需与凝固坯壳自然收缩相匹配,以此减轻内部应力与裂纹倾向。设计需综合考量弧度半径、锥度曲线以及冷却强度等多重因素,确保坯壳均匀生长与稳定脱模。相关的学习资料涵盖了从理论计算到具体结构实现的完整过程,对深入理解该关键设备的设计思路具有重要参考价值。
免责声明:本文为用户发表,不代表网站立场,仅供参考,不构成引导等用途。
机械设计资料
相关推荐
ZH1105柴油机气缸体工艺及工装设计(说明书+CAD图纸+工序卡+过程卡+开题报告+任务书+外文翻译+……)
01/27
19
万能材料试验机【说明书+CAD图纸】
02/05
7
端盖零件的机械加工工艺规程设计(大批生产)
01/19
22
CA6140车床后托架的加工工艺与钻床夹具设计
02/06
6
【4层】总建筑面积3990㎡左右南方某城市框架办公大楼的设计(计算书、建筑、结构图)
02/01
18
首页
分类
购物车
消息
我的
想要更低价购买?
长按二维码,联系客服享优惠折扣
微信号:
yj99cn