机械设计资料
返回首页
会员中心
功能菜单
联系我们
https://web.sjbb168.com/
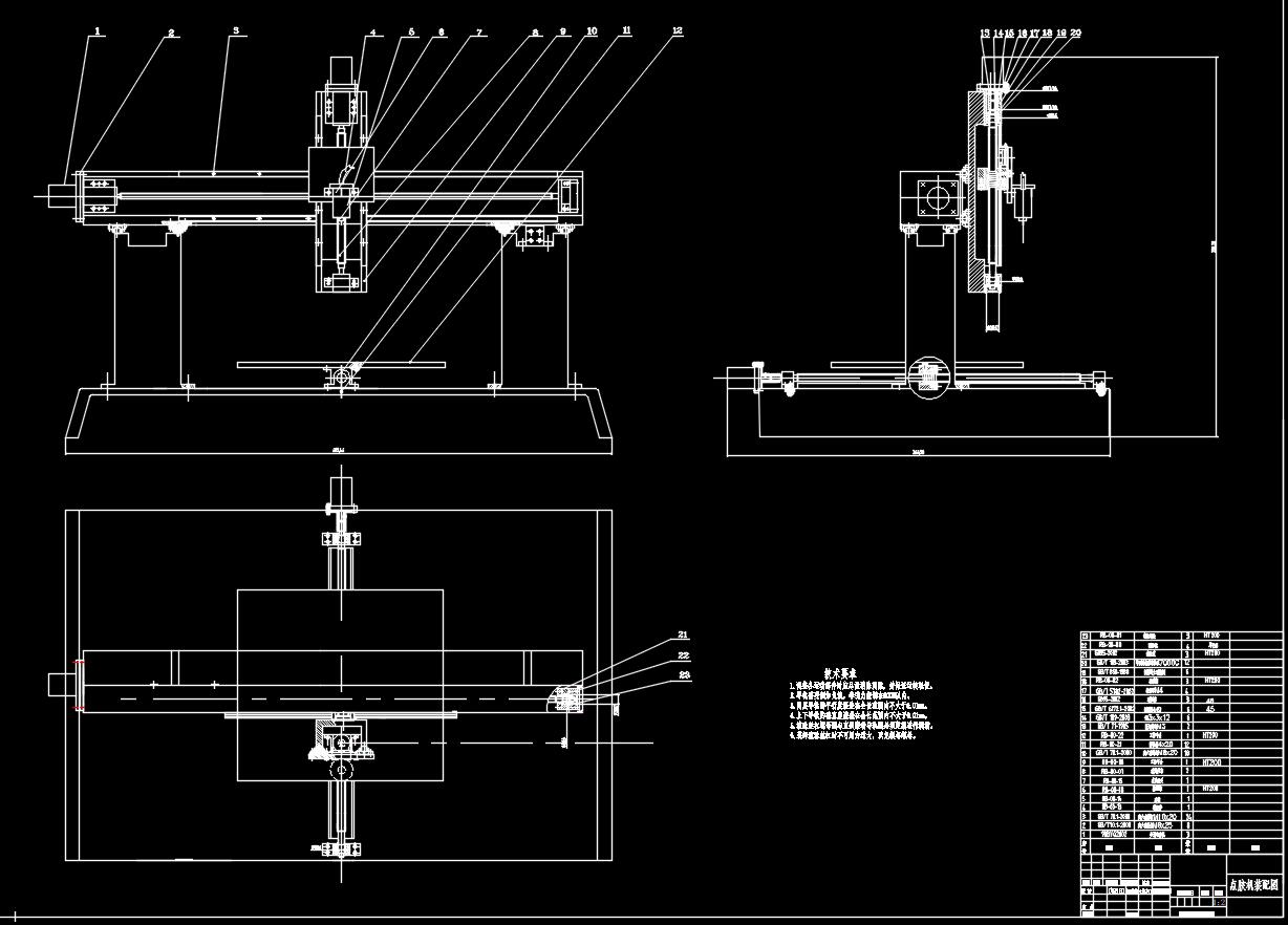
全自动点胶机结构设计(说明书+CAD图纸+开题报告+中期检查表)
来源: 阅读:36
网站管理员
发布于 2026-02-04 21:00
查看主页
全自动点胶机的结构设计,直接决定了设备运行的精度与稳定性。其核心在于构建一个刚性好、运动平稳的机械平台。通常采用高精度直线模组实现三维空间的精准定位,配合恒压供胶系统确保出胶均匀。合理的机架布局与零部件选型,能有效控制振动,提升点胶轨迹的一致性。这套结构方案的学习资料,包含了详细的二维图纸与设计文档,为相关设计工作提供了清晰的参考,有助于显著缩短开发周期。
免责声明:本文为用户发表,不代表网站立场,仅供参考,不构成引导等用途。
机械设计资料
相关推荐
Z5140A-立式钻床图纸(含总装配图+部件装配图+零件图,全套共285张图纸)
03/07
41
花生去壳机(剥壳机)设计(论文+CAD图纸)
03/30
10
小型荞麦播种机设计(动力、传动、行走及功能转换机构)——(论文+CAD图纸+文献综述+任务书+参考文献……)
04/01
2
玉米浆补料罐
03/18
27
CA10B前刹车调整臂外壳工艺及钻G1-8孔夹具设计【设计说明书+CAD图纸+CAD版本的工序卡及过程卡+三维SW】
03/13
17
首页
分类
购物车
消息
我的
想要更低价购买?
长按二维码,联系客服享优惠折扣
微信号:
yj99cn