机械设计资料
返回首页
会员中心
功能菜单
联系我们
https://web.sjbb168.com/
毕业设计_金刚石砂轮修整器设计(说明书+14张CAD图纸)
来源: 阅读:56
网站管理员
发布于 2026-02-02 06:00
查看主页
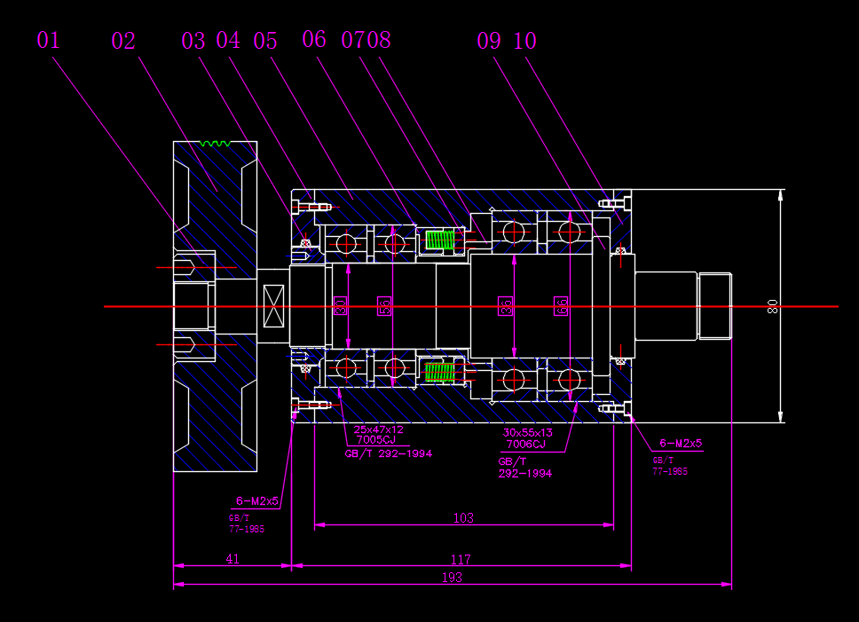
金刚石砂轮修整器是精密磨削中的关键工艺装备,其核心作用在于恢复砂轮的几何精度与锋利度。本次设计围绕修整器结构展开,重点考量了刚性布局与精密进给机构,以确保修整过程的稳定与精确。相关学习资料涵盖了详细的结构设计、关键部件分析以及装配关系探讨,旨在实现修整效率与质量的平衡,为同类装置的设计提供了实用参考。
免责声明:本文为用户发表,不代表网站立场,仅供参考,不构成引导等用途。
机械设计资料
相关推荐
用于带式运输机上的传动及减速装置(论文+DWG图纸)
01/29
30
车床连接座零件的机械加工工艺规程及工装设计【钻3-φ7孔】(设计说明书 CAD图纸 开题报告 工序卡 外文翻译)
12/26
39
2000kn四柱式通用液压机设计【说明书 CAD图纸 开题报告】
03/13
17
支撑掩护式液压支架设计(论文+CAD图纸+翻译)
12/31
78
钻镗专用机床液压系统设计【课程设计说明书+液压缸装配图+液压原理图】
02/04
32
首页
分类
购物车
消息
我的
想要更低价购买?
长按二维码,联系客服享优惠折扣
微信号:
yj99cn