收录软文
返回首页
会员中心
功能菜单
联系我们
https://web.sjbb168.com/
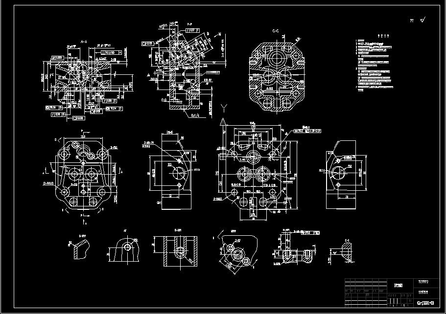
多轴钻孔组合机床设计
来源: 阅读:56
网站管理员
发布于 2026-02-01 23:00
查看主页
多轴钻孔组合机床设计,核心在于通过多轴协同与工序整合,实现多工位同步钻孔。设计时需重点优化主轴布局,确保各轴平行度与进给同步性,减少重复定位误差,提升批量加工的精度稳定性。通过结构紧凑化设计,缩短工序流转时间,显著提升加工效率,为相关零件的高效钻孔提供实用资料参考。
免责声明:本文为用户发表,不代表网站立场,仅供参考,不构成引导等用途。
收录软文
相关推荐
带式输送机的设计论文及图纸
01/30
55
ZL50轮式装载机工作装置设计(论文+CAD图纸)
01/27
50
107米变截面连续箱梁天桥施工图纸(CAD图纸+天桥说明+全桥工程数量数量表)
02/10
50
膜片弹簧离合器毕业设计(论文+CAD图纸)
01/05
54
输出轴夹具设计(课程设计说明书+任务书+CAD图纸+三维图 proe+step +x_t+SW……)
01/30
44
首页
分类
购物车
消息
我的
想要更低价购买?
长按二维码,联系客服享优惠折扣
微信号:
yj99cn