机械设计资料
返回首页
会员中心
功能菜单
联系我们
https://web.sjbb168.com/
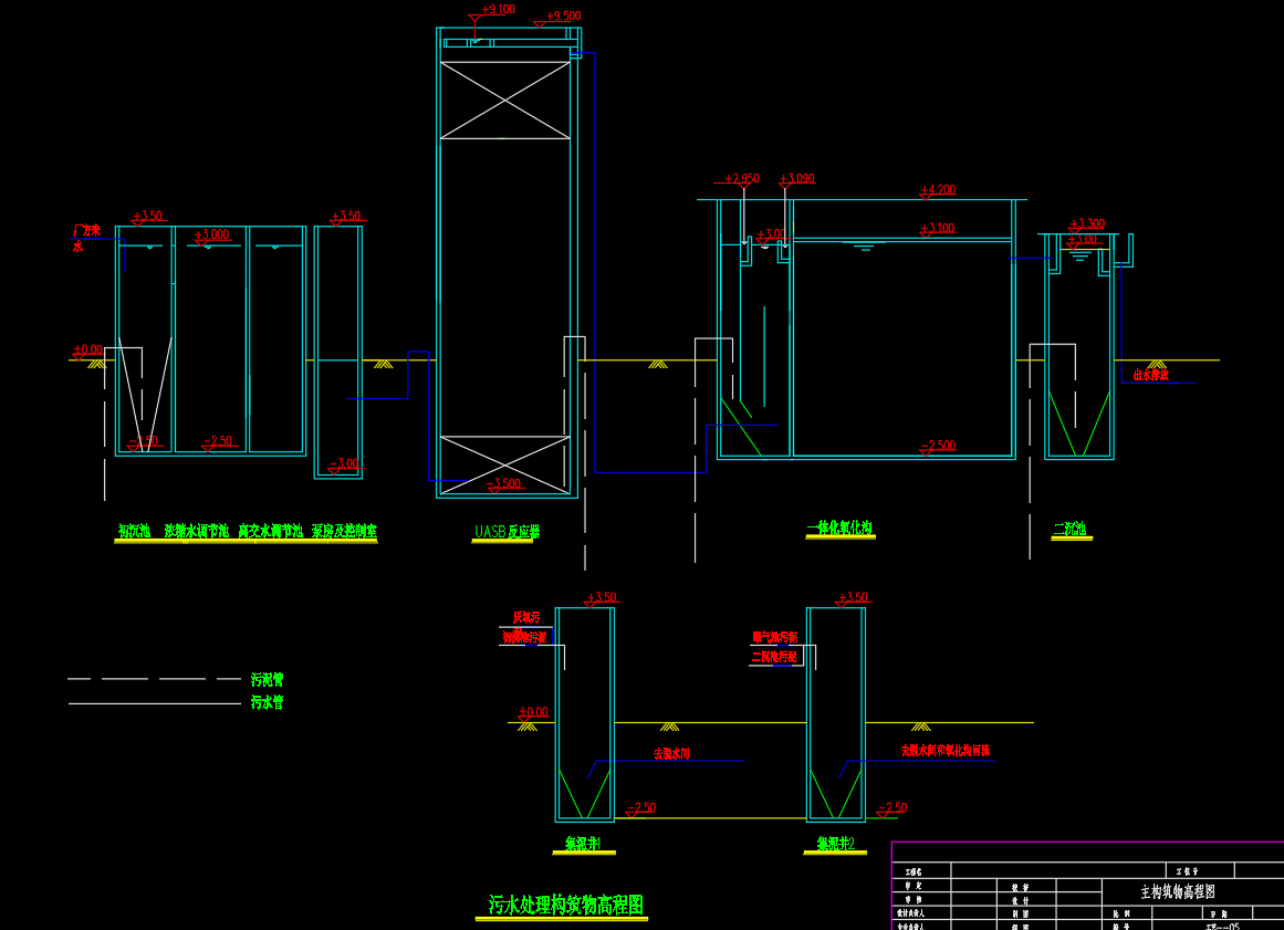
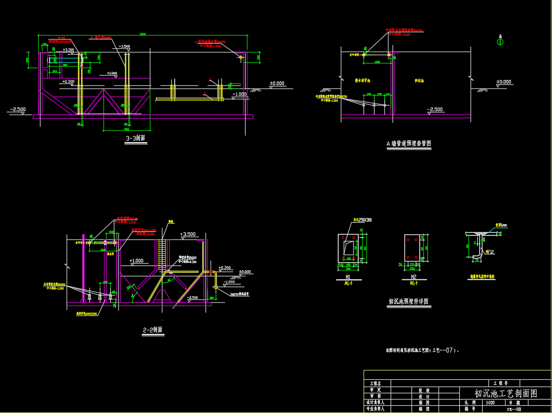
[山西]30000吨每年柠檬酸盐工程废水治理项目图纸UASB工艺
来源: 阅读:19
网站管理员
发布于 2026-01-31 15:20
查看主页
针对山西年产30000吨柠檬酸盐工程的高浓度有机废水,UASB工艺图纸提供了关键解决方案。其核心在于通过厌氧生物处理,将废水中有机物高效转化为沼气,实现能源回收。该工艺设计能大幅降低后续处理负荷与运行成本,结构紧凑且运行稳定,为同类食品发酵行业废水治理提供了可靠的技术路径与实用资料。
免责声明:本文为用户发表,不代表网站立场,仅供参考,不构成引导等用途。
机械设计资料
相关推荐
三面翻广告牌传动系统设计(说明书 CAD图纸 开题报告 任务书……)
01/10
31
PLC控制机械手设计(论文+DWG图纸)
02/08
6
高压水切机【毕业设计(论文)+三维图+仿真】
01/19
27
400KN液压绞车液压系统设计 全套毕业设计(开题报告+任务书+说明书+外文翻译+CAD图纸)
01/28
24
年产30万吨啤酒厂工厂设计——32页
01/27
19
首页
分类
购物车
消息
我的
想要更低价购买?
长按二维码,联系客服享优惠折扣
微信号:
yj99cn