机械设计资料
返回首页
会员中心
功能菜单
联系我们
https://web.sjbb168.com/
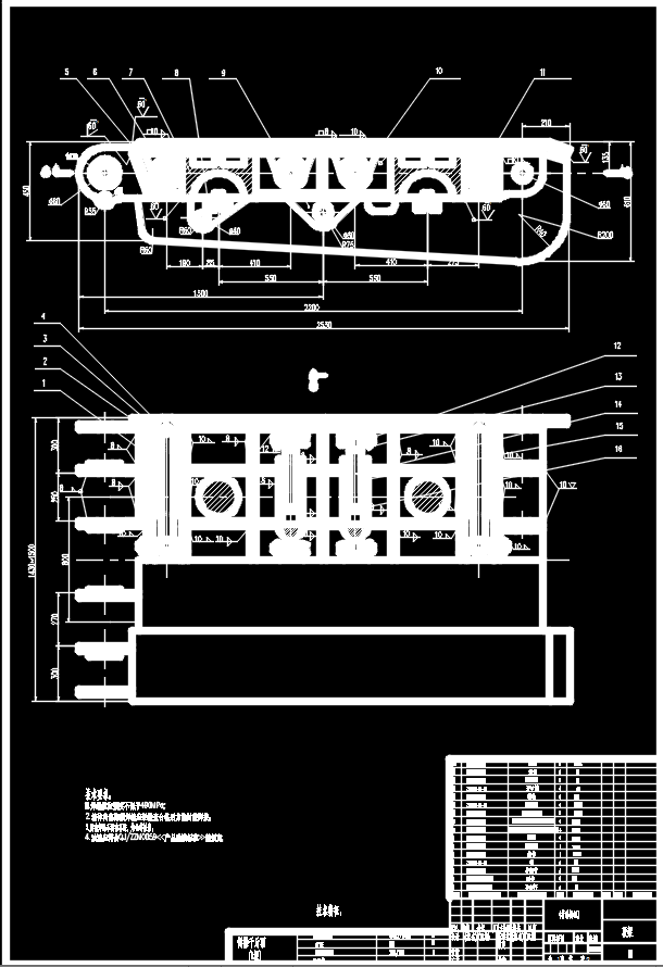
低位放顶煤液压支架的设计 备注:此份资料装配图不含明细表
来源: 阅读:14
网站管理员
发布于 2026-01-30 21:20
查看主页
低位放顶煤液压支架的设计,直接关系到综采工作面顶煤回收的安全与效率。其核心在于优化四连杆机构与顶梁、尾梁的配合,确保支架在低位时能有效支撑顶板,并顺畅放落顶煤。设计中需重点考量支护强度、放煤口尺寸及液压系统的联动控制,以实现支架在复杂煤层条件下的稳定运行与高回收率。这份学习资料深入解析了关键结构的设计思路,对掌握此类装备技术要点颇具参考价值。
免责声明:本文为用户发表,不代表网站立场,仅供参考,不构成引导等用途。
机械设计资料
相关推荐
桥长458米公路Ⅰ级路基宽12.5m预应力混凝土简支梁桥(计算书82页,CAD图纸8张)
01/26
21
机械加工工艺过程卡片
01/20
24
自动导引小车(AVG)的设计(论文+CAD图纸+开题报告+任务书+答辩ppt)
12/25
25
金属带式汽车无级变速器传动机构设计(说明书+CAD图纸+开题报告+任务书+题目审定表)
01/29
22
加热炉推料机的执行机构综合与传动装置设计
01/08
22
首页
分类
购物车
消息
我的
想要更低价购买?
长按二维码,联系客服享优惠折扣
微信号:
yj99cn