收录软文
返回首页
会员中心
功能菜单
联系我们
https://web.sjbb168.com/
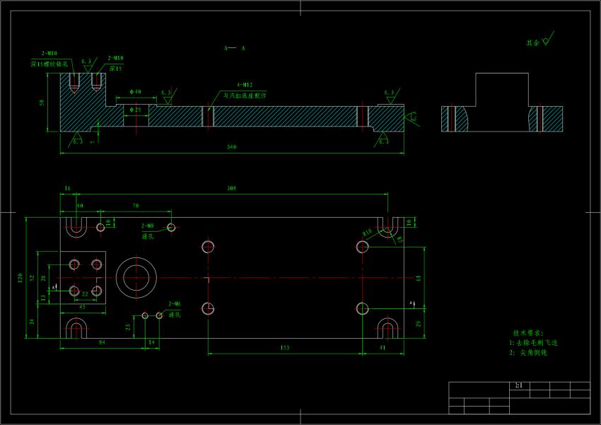
拨叉[831005] 2-钻Φ22花键孔夹具[版本2]
来源: 阅读:13
网站管理员
发布于 2026-01-30 09:36
查看主页
拨叉[831005]的2-钻Φ22花键孔夹具(版本2),主要用来装夹工件辅助钻孔。它通过优化的定位结构,能快速找准拨叉上的加工位置,夹紧时稳当不晃,确保Φ22花键孔的尺寸和位置精度。相比旧版,装夹更省时,批量作业不用反复调整,孔的一致性更好,返工少,相关实用资料里能看到具体的结构改进细节。
免责声明:本文为用户发表,不代表网站立场,仅供参考,不构成引导等用途。
收录软文
相关推荐
带轮注塑模CAD图纸
01/28
21
协作机器人3D数模图纸 STEP格式
01/31
18
毛细管特性分析及压力测试台设计(说明书+CAD图纸+SolidWorks三维图)
01/08
32
2000×8000大型胶带制品平板硫化机液压系统设计本科毕业设计全套
02/04
11
丰田轿车离合器的设计【说明书+CAD图纸+开题报告+任务书+答辩相关材料】
02/06
5
首页
分类
购物车
消息
我的
想要更低价购买?
长按二维码,联系客服享优惠折扣
微信号:
yj99cn