机械设计资料
返回首页
会员中心
功能菜单
联系我们
https://web.sjbb168.com/
XX高速公路预应力简支T型梁桥设计(毕业论文102页+CAD图纸+开题报告+任务书)
来源: 阅读:31
网站管理员
发布于 2026-01-30 07:30
查看主页
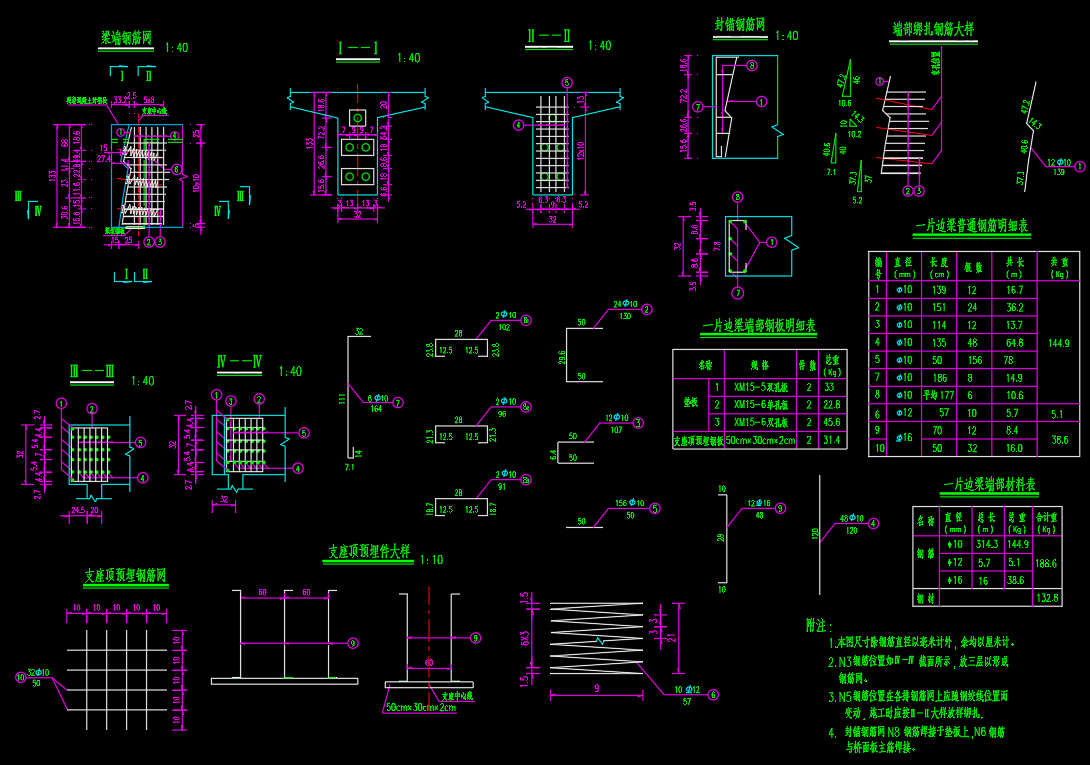
这份关于XX高速公路预应力简支T型梁桥的学习资料,系统呈现了从方案比选到结构设计的全过程。其核心在于运用预应力技术提升梁体抗裂性与刚度,有效控制结构变形。资料详细阐述了T型截面优化、预应力钢束布置及锚固区设计等关键,确保了桥梁在荷载下的安全与耐久。整套实用资料结构严谨,逻辑清晰,对理解同类桥梁设计具有重要参考价值。
免责声明:本文为用户发表,不代表网站立场,仅供参考,不构成引导等用途。
机械设计资料
相关推荐
翻边模全套CAD图纸
01/16
40
机械制造基础课程设计——制定后钢板弹簧吊耳的加工工艺,设计钻Ø30工艺槽的铣床夹具
01/30
32
钢板弹簧毕业设计(论文+9张CAD图纸) 设计的主要参数:装载质量:6000kg,整备质量:3840kg,空载时:前轴负荷:1690kg 后轴负荷:2150kg,满载时:前轴负荷:3444kg 后轴负荷:6396kg,轴距:3300mm
02/02
35
三层三列升降横移自动化立体车库【设计说明书+CAD图纸+SW三维+动画仿真】
02/13
36
年产18万吨合成氨脱硫工段工艺设计本科毕业论文——38页
02/08
26
首页
分类
购物车
消息
我的
想要更低价购买?
长按二维码,联系客服享优惠折扣
微信号:
yj99cn