机械设计资料
返回首页
会员中心
功能菜单
联系我们
https://web.sjbb168.com/
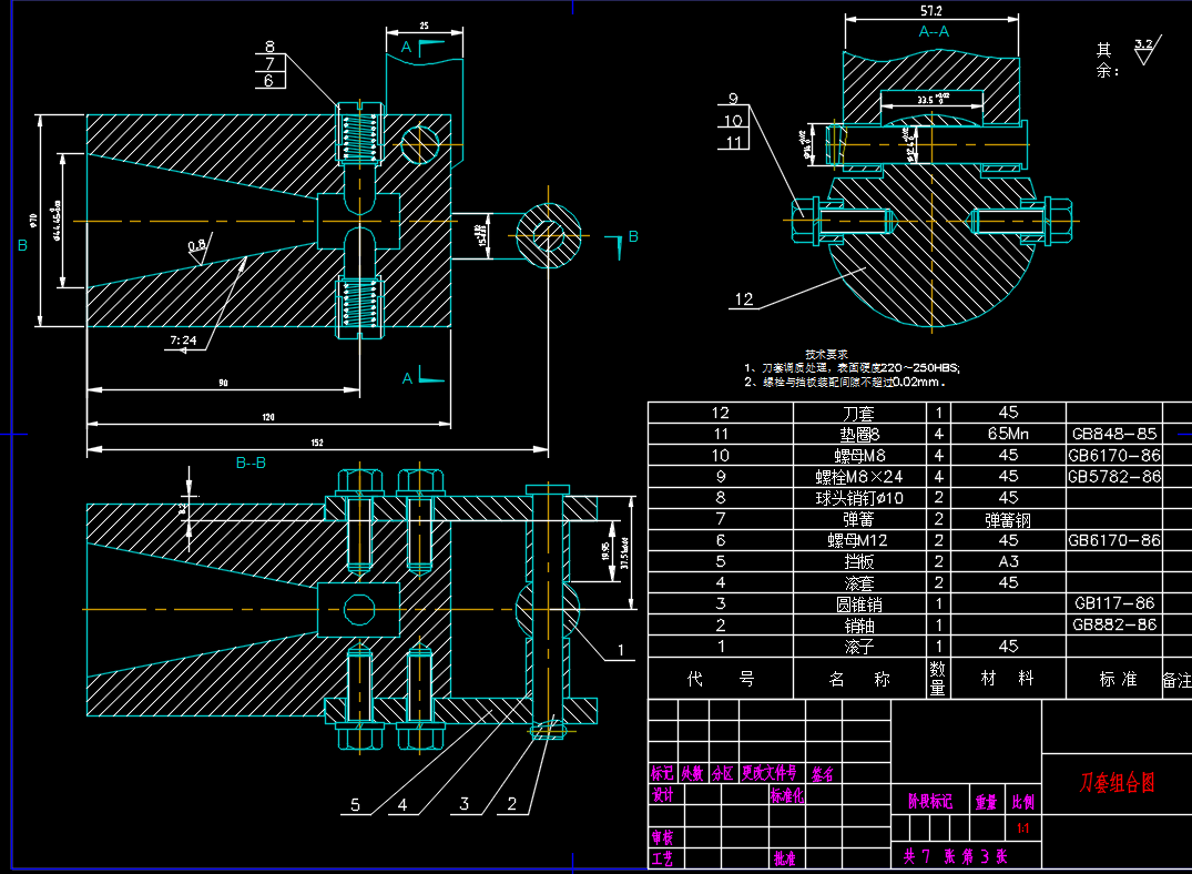
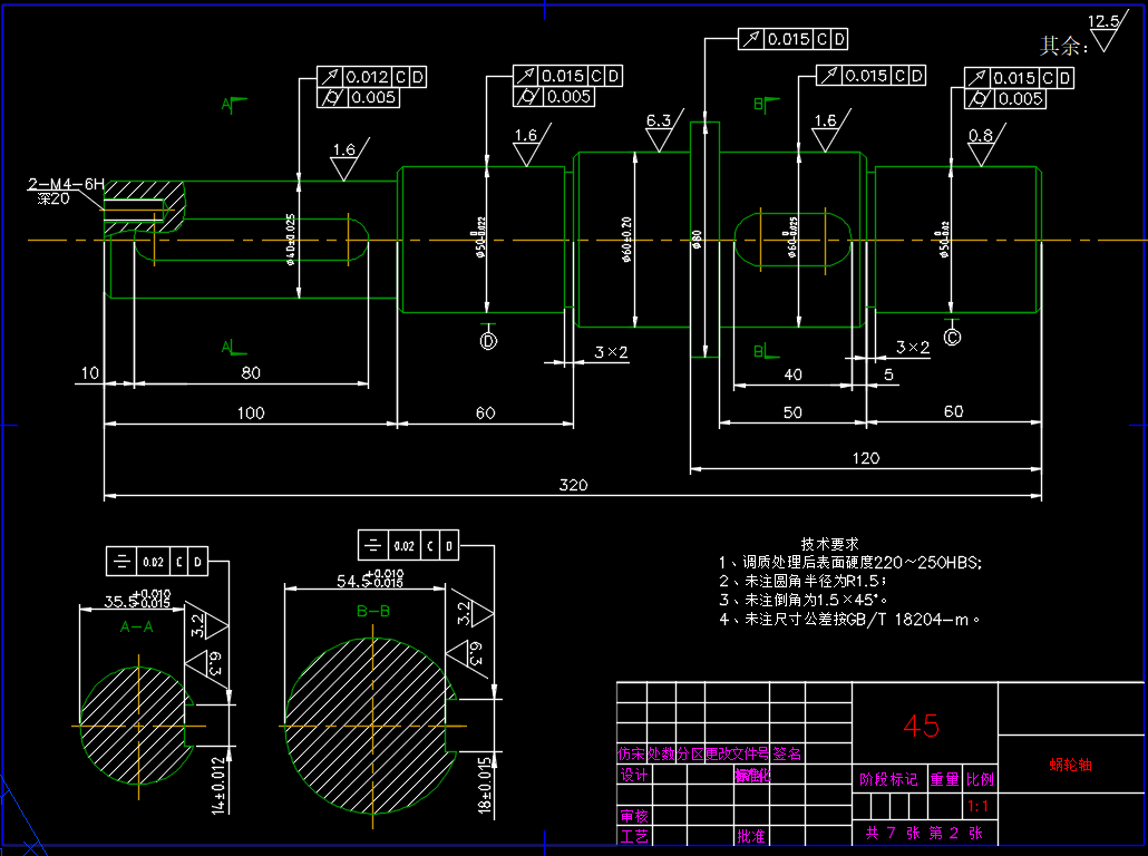
无换刀机械手刀库结构设计(说明书+7张CAD图纸) 刀座数:16
来源: 阅读:51
网站管理员
发布于 2026-01-29 13:30
查看主页
无换刀机械手刀库采用链式或盘式结构,通过主轴直接抓取刀具。其核心在于刀座与主轴的精准定位,配合凸轮或槽轮机构实现刀盘分度。十六个刀座围绕轴线均布,结构紧凑,减少了运动部件数量。这种设计降低了复杂性与故障点,提升了系统刚性。刀库运行依赖可靠的驱动与定位,确保了换刀过程的快速与准确。整体布局优化了空间,使机床结构更为简洁高效。相关学习资料包含详细的结构图纸,可供深入参考。
免责声明:本文为用户发表,不代表网站立场,仅供参考,不构成引导等用途。
机械设计资料
相关推荐
225 75tA7四梁四轨铸造桥式起重机设计(L=28m) 此份不含图纸
02/04
55
用微机数控系统改造C6132型车床设计(论文 CAD图纸 开题报告 任务书 文献翻译 电路图 加工程序……)
01/01
62
压缩空气贮罐装配图
03/18
34
组合式棉杆拔杆机的设计【任务书+solidworks三维+5张cad图纸+毕业论文+开题报告+答辩稿】
12/27
61
轴零件的加工工艺、夹具及程序设计【设计说明书(内含加工程序清单及解释)+CAD图纸+CAXA图纸+机械加工工艺过程卡片、机械加工工序卡片】
02/05
51
首页
分类
购物车
消息
我的
想要更低价购买?
长按二维码,联系客服享优惠折扣
微信号:
yj99cn