机械设计资料
返回首页
会员中心
功能菜单
联系我们
https://web.sjbb168.com/
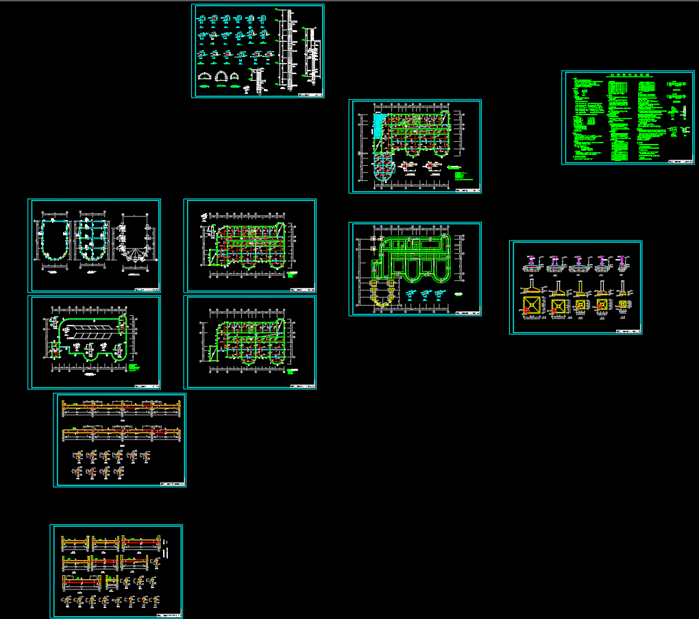
【3层】2252.5平米三层框混幼儿园工程量计算(含建筑、结构图)
来源: 阅读:48
网站管理员
发布于 2026-01-28 23:20
查看主页
针对这座2252.5平米的三层框混结构幼儿园,工程量计算是项目成本控制与施工组织的核心依据。基于建筑与结构图纸,计算工作需精确涵盖混凝土、砌体、模板、钢筋及装饰等各分项工程。通过系统梳理图纸信息,形成详细的工程量清单,能为材料采购、进度安排及造价管理提供扎实的数据支撑,确保项目从图纸到实物的高效、精准落地。这份计算过程形成的实用资料,对同类项目具有直接的参考价值。
免责声明:本文为用户发表,不代表网站立场,仅供参考,不构成引导等用途。
机械设计资料
相关推荐
用微机数控系统改造C6132型车床设计(论文 CAD图纸 开题报告 任务书 文献翻译 电路图 加工程序……)
01/01
61
2.9吨带升降LDB(链条重载输送机6x2.1x0.6-0.8)
02/07
45
包子生产机的设计【论文 9张CAD图纸 开题报告 任务书 实习报告】
02/03
57
一级圆锥减速器课程设计(设计说明书+CAD图纸)
02/02
61
宠物定时喂食器设计论文——50页(含电路图+程序)
02/15
41
首页
分类
购物车
消息
我的
想要更低价购买?
长按二维码,联系客服享优惠折扣
微信号:
yj99cn