机械设计资料
返回首页
会员中心
功能菜单
联系我们
https://web.sjbb168.com/
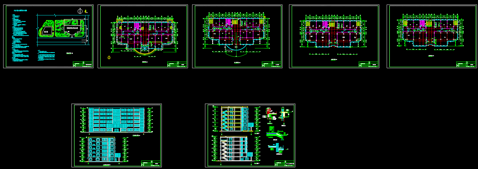
某公司办公楼设计 6层 6600平米(建筑图、结构图、计算书、施工组织、进度计划表(CAD横道图)、总平面图、含电算等资料)
来源: 阅读:54
网站管理员
发布于 2026-01-28 21:00
查看主页
针对六层、面积约6600平方米的办公楼项目,提供了一套全面的设计资料。其中包含建筑与结构图纸、详细的计算书、施工组织方案以及进度计划横道图等实用资料。这些内容系统展现了从方案到施工准备的完整技术路径,尤其结构计算部分结合了电算分析,确保了方案的可行性与经济性。整套资料逻辑连贯,对类似规模的公建项目具有直接的参考价值,能显著缩短前期准备周期。
免责声明:本文为用户发表,不代表网站立场,仅供参考,不构成引导等用途。
机械设计资料
相关推荐
CA6140车床拨叉831003机械加工工艺规程及精铣18H11槽夹具设计【课程设计说明书+CAD图纸+SW三维+STP通用格式+工序卡+过程卡】
02/02
54
10万11°(淡爽)啤酒厂设计毕业设计(论文)——64页
01/28
47
危险气体泄露报警器设计资料(论文+开题报告+任务书+电路图、程序……)
02/15
42
机械毕业设计论文-杠杆工艺和工装设计(论文+CAD图纸+三维图)
03/29
23
一套数控雕刻机的图纸(SolidWorks+stp)
01/26
51
首页
分类
购物车
消息
我的
想要更低价购买?
长按二维码,联系客服享优惠折扣
微信号:
yj99cn