机械设计资料
返回首页
会员中心
功能菜单
联系我们
https://web.sjbb168.com/
河南郑州某4层建筑面积约4600 m2框架结构商业办公楼设计(含计算书、设计图、翻译、文献综述)
来源: 阅读:14
网站管理员
发布于 2026-01-28 20:30
查看主页
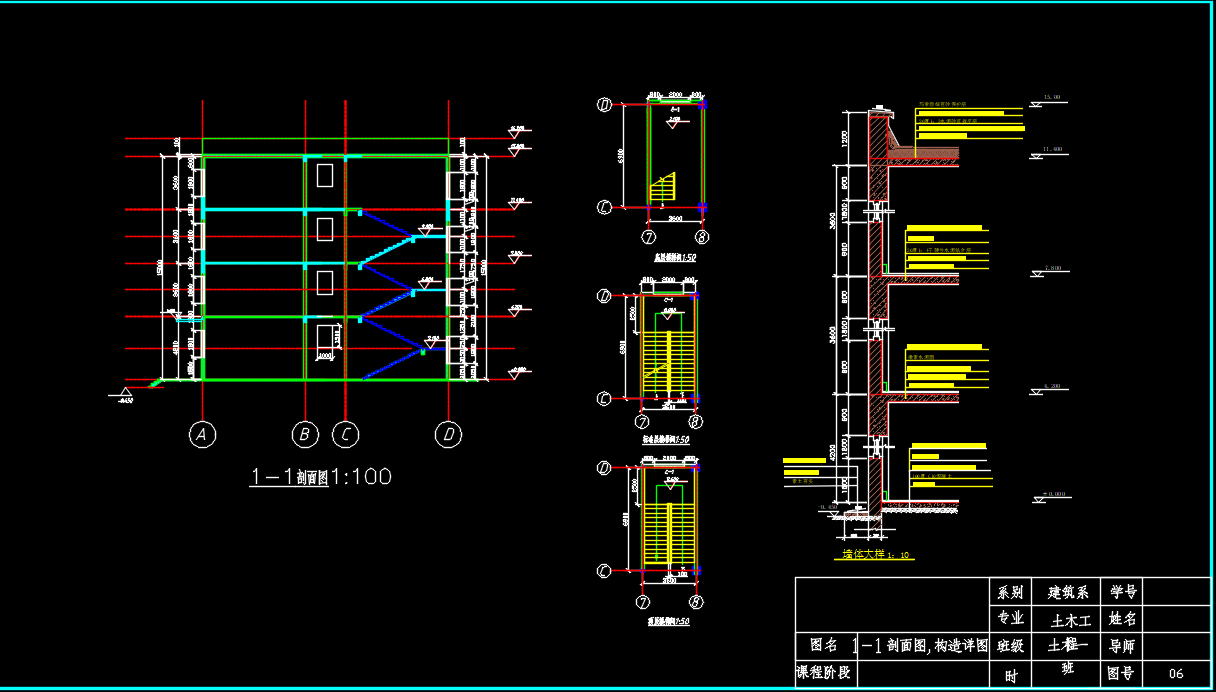
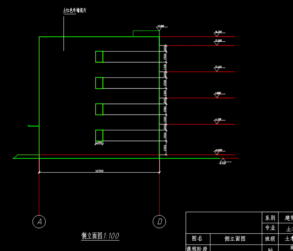
这座位于郑州的四层商业办公楼采用框架结构,建筑面积约4600平方米。设计涵盖了完整的建筑与结构方案,配套的计算书、设计图及文献综述等学习资料,系统呈现了从概念到详细设计的全过程。该案例清晰展示了多层商业办公建筑的常规设计方法与技术要点,对理解同类项目的结构选型、功能布局与规范应用具有直接的参考价值。相关实用资料可供学习者系统查阅,帮助掌握框架结构设计的关键流程。
免责声明:本文为用户发表,不代表网站立场,仅供参考,不构成引导等用途。
机械设计资料
相关推荐
手机后盖注塑模设计【毕业设计(论文)说明书+CAD图纸+开题报告+任务书+中期检查表+进度计划表】
02/08
6
内蒙古包头某厂房单层钢结构设计(计算书+CAD图纸)
02/02
11
端盖零件的工艺规程及钻Φ16H7孔的工装夹具设计
01/19
26
汽车轮帽外壳模具设计
01/31
17
CA6410法兰盘夹具设计【机械制造技术基础课程设计】
02/07
8
首页
分类
购物车
消息
我的
想要更低价购买?
长按二维码,联系客服享优惠折扣
微信号:
yj99cn